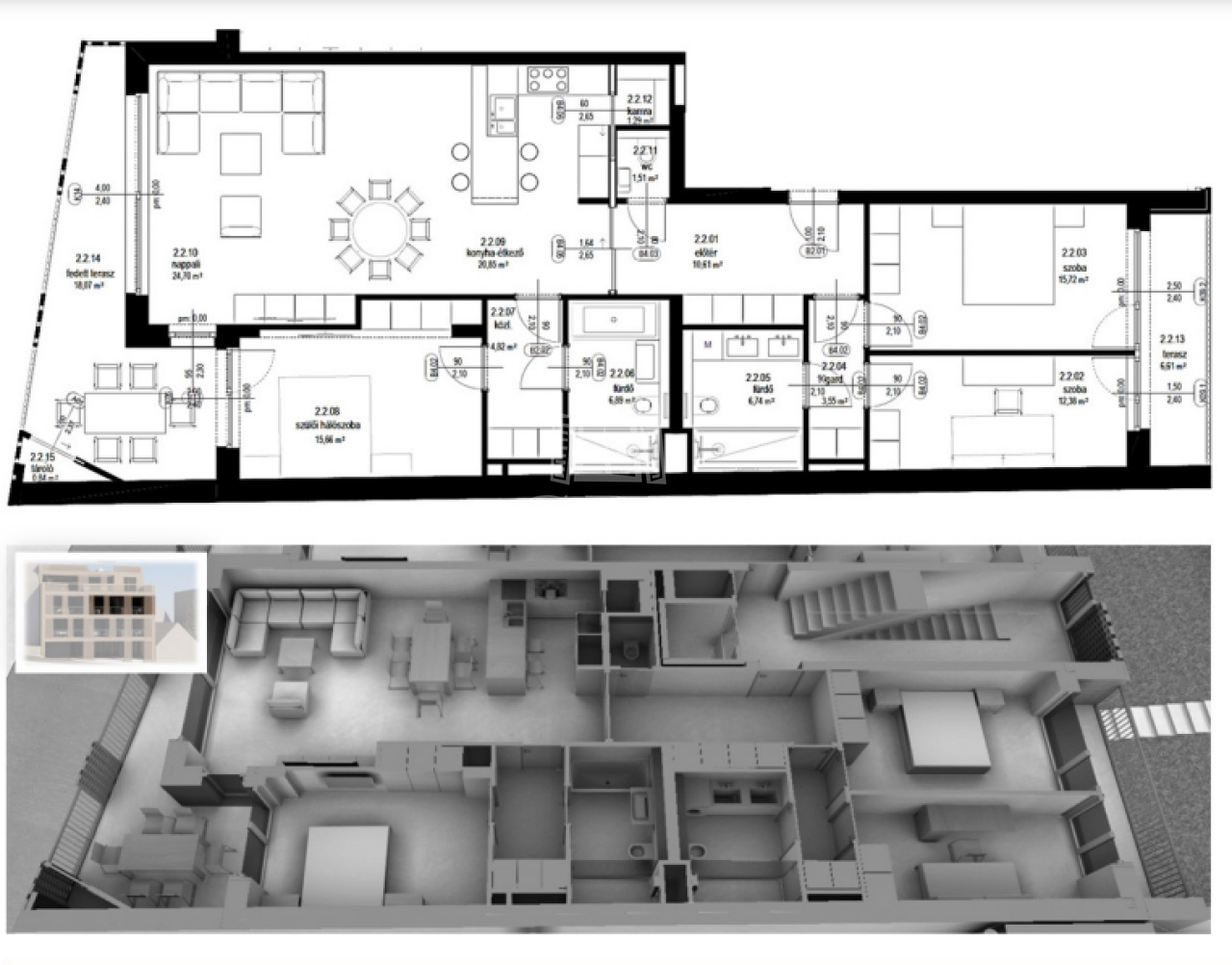
| 138 m2Alapterület | 4 Szoba |
| 450 000 000 Ft Ár | |
| 378262Azonosító | |
| További adatok | |
Utcai Kilátás
Új Állapot
Csúsztatott zsalu Szerkezet
26 m2 Erkély/terasz
Hőszivattyú Fűtés
Összkomfort Komfort
Garázs/beálló vásárolható Parkolás
Emelet 2
Van Lift
Kiváló Tömegközlekedés
Amerikai konyhás
Nincs Kertkapcsolat
2024 Építés éve
Déli Tájolás
Beszélt nyelvek: