Eladó Lakás Budapest II. kerület - Nagybányai út

283 m2Alapterület 7 Szoba
990 000 000 Ft Ár
383244Azonosító
További adatok

Panoráma Kilátás

Új Állapot

Tégla Szerkezet

133 m2 Erkély/terasz

Hőszivattyú Fűtés

Luxus Komfort

Saját beálló Parkolás

Emelet 6

Legfelső emelet

Van Lift

Tömegközlekedés

Amerikai konyhás

Nincs Kertkapcsolat

Tetőtéri ingatlan

2024 Építés éve

Déli Tájolás

Hitelkalkuláció – a részletekért kattintson valamelyik bank logójára!

⚙️ KIVÉTELES PENTHOUSE LAKÁS, MELY MINDEN RÉSZLETÉBEN A MINŐSÉGRŐL, A JÖVŐRŐL ÉS AZ ÉLMÉNYRŐL SZÓL. ⚙️

A luxus legmagasabb szintje Törökvész csendes, zöld utcájában. – szó szerint.
Kétszintes, tetőteraszos penthouse, tökéletes kilátással a János-hegy, Hűvösvölgy, Gellért-hegy irányába. Ez az ingatlan nemcsak a társasház ékköve, hanem a budai luxusingatlan-piac egyik legkülönlegesebb ajánlata – minden részletében prémium, minden szögből lenyűgöző.

***** PLEASE SCROLL DOWN FOR THE ENGLISH VERSION *****

⚙️ FŐBB JELLEMZŐK:
☆ Helyszín: Budapest II. kerület, Törökvész (Nagybányai út)
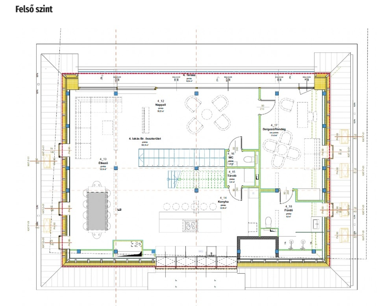
☆ Méret: 283 nm + 133 nm privát tetőterasz
☆ Szintek: 2 (belső lépcsővel)
☆ Elrendezés: 6 szoba + nappali-étkező-konyha egyben
☆ Fürdők: 3 teljes fürdő + vendég WC
☆ Extra helyiségek: háztartási helyiség, gardróbszoba, előszoba
☆ Parkolás: 2 felszíni beálló elektromos autótöltővel
☆ Ár: 990 000 000 HUF
☆ Állapot: Emelt szerkezetkészen – külön albetéten, saját mérőórákkal

Az új tulajdonosnak csak a hideg-meleg burkolatokat, szanitereket és bútorokat kell kiválasztania. Igény esetén teljes körű szakági támogatás – a lakás akár 6–8 héten belül költözhető.

A képek látványtervek. Az alaprajz tájékoztató jellegű.

⚙️ KERT ÉS KÖZÖS TEREK – ÉLHETŐ LUXUS KÍVÜL-BELÜL
A társasházban csupán 6 prémium lakás található, parkosított kerttel, hangulatvilágítással, kültéri tűzrakóval, és előkészített szauna- és jacuzzi csatlakozásokkal.

⚙️ TETŐTERASZ – A lakás 133 nm-es tetőterasza privát oázis a város felett – automata ajtón keresztül kapcsolódik a lakótérhez.

⚙️ OKOSOTTHON RENDSZER – LOXONE ELŐKÉSZÍTÉSSEL
✔ Távolról vezérelhető fűtés, hűtés, párátlanítás
✔ Elektromos zsalúziák, videókaputelefon, riasztó
✔ iPadről és mobilról kezelhető vezérlés
✔ Ujjlenyomatolvasós és NFC-s bejárati rendszer

⚙️ PRÉMIUM GÉPÉSZET ÉS TECHNOLÓGIA
✔ Daikin hőszivattyús rendszer: padlófűtés + mennyezethűtés
✔ Wolf hővisszanyerős szellőztető rendszer
✔ 3 rétegű ALIPLAST alumínium nyílászárók, elektromos árnyékolók
✔ Külön albetét, önálló mérőórákkal

⚙️ KIVÁLÓ LOKÁCIÓ – NYUGODT KÖRNYEZET, KÖZPONTI ELÉRHETŐSÉG
✔ Tömegközlekedés: 11-es és 29-es busz, gyors elérés Széll Kálmán térre
✔ Autóval 15–20 perc a belváros
✔ Fejlett úthálózat, több alternatív útvonal
✔ Csendes, zöld utcában, mégis közel mindenhez

⚙️ INFRASTRUKTÚRA A KÖZELBEN
✔ Bevásárlás: Rózsadomb Center, Rózsakert, Mammut, Hüvi
✔ Oktatás: SEK Nemzetközi Iskola, francia és angol óvodák
✔ Egészségügy: Rózsakert Medical Center, Budai Egészségközpont
✔ Szabadidő: teniszklubok, uszoda, jóga, Margitsziget, Hármashatár-hegy

⚙️ BEFEKTETÉSI LEHETŐSÉG, AMI RITKASÁGSZÁMBA MEGY
✔ Tetőteraszos penthouse lakás
✔ Magas presztízs, egyedi kilátás, ikonikus megoldások
✔ Külföldi vevők és expatok által is keresett lokáció

☆ TOVÁBBI INFORMÁCIÓÉRT VAGY MEGTEKINTÉSÉRT KERESSEN BIZALOMMAL!


***** THE ENGLISH VERSION *****

⚙️ A UNIQUE RESIDENCE THAT EMBODIES QUALITY, VISION, AND EXPERIENCE ⚙️
Two-story penthouse above Törökvész

Luxury at the highest level – literally. Is it a two-level penthouse with a private rooftop terrace, perched atop Törökvész. Not only the crown jewel of its boutique six-unit building, this residence is one of the most extraordinary luxury listings in Buda — premium in every detail, breathtaking from every angle.

⚙️ KEY FEATURES:
☆ Location: Budapest District II, Törökvész (Nagybányai Street)
☆ Size: 283 sqm + 133 sqm rooftop terrace
☆ Levels: 2 (connected by interior staircase)
☆ Layout: 6 rooms + open-plan living-dining-kitchen
☆ Bathrooms: 3 full + guest WC
☆ Additional rooms: utility room, walk-in closet, entry hall
☆ Parking: 2 surface spaces with electric vehicle chargers
☆ Price: HUF 990,000,000
☆ Condition: Advanced structural shell – including heating system, alarm system, and other mechanical installations – separate ownership unit with individual meters.

The new owner only needs to choose the hot and cold coverings, sanitary ware and furniture. Full professional support if required – the apartment can be moved into within 6–8 weeks.

The images are visual renderings. The floor plan is for informational purposes only.

⚙️ GARDEN AND SHARED SPACES – ELEVATED OUTDOOR LIVING
The building has only 6 exclusive homes surrounded by a landscaped garden with ambient lighting, outdoor fire pits, and pre-installed sauna & jacuzzi connections.
The 133 sqm rooftop terrace is your private sky oasis – accessed via automatic sliding doors for ultimate comfort.

⚙️ SMART HOME SYSTEM – LOXONE PRE-INSTALLATION
✔ Remote control of heating, cooling, and dehumidification
✔ Electric blinds, video intercom, alarm system
✔ Managed via iPad and mobile devices
✔ Entry via fingerprint or NFC system

⚙️ PREMIUM ENGINEERING AND TECHNOLOGY
✔ Daikin heat pump system: underfloor heating + ceiling cooling
✔ Wolf heat recovery ventilation system
✔ Triple-glazed ALIPLAST aluminum windows with electric blinds
✔ Separate title and individual meters

⚙️ PRIME LOCATION – QUIET YET WELL CONNECTED
✔ Public transport: buses 11 and 29 to Széll Kálmán Square
✔ 15–20 minutes by car to downtown
✔ Multiple alternative road options
✔ Quiet, green street with full urban access

⚙️ INFRASTRUCTURE NEARBY
✔ Shopping: Rózsadomb Center, Rózsakert, Mammut Mall, Hüvi
✔ Education: SEK International School, French and British kindergartens
✔ Healthcare: Rózsakert Medical Center, Buda Health Center
✔ Leisure: tennis clubs, swimming pools, yoga, Margaret Island, Hármashatár Hill

⚙️ INVESTMENT OPPORTUNITY
✔ Rare rooftop penthouse with unmatched views
✔ Iconic design, top-tier location, timeless value
✔ Strong interest from foreign buyers and expats

☆ FOR MORE INFORMATION OR TO SCHEDULE A VIEWING, PLEASE CONTACT US!
Balogh Zsuzsa

Balogh Zsuzsa

Hívjon bizalommal

+36-20-800-Mutasd!

Beszélt nyelvek:

További hirdetéseim

Ingatlaniroda
GDN Ingatlanhálózat - Harmónia

Küldjön üzenetet

Visszahívást kérek

Hasonló ingatlanok