Eladó Lakás Budapest VI. kerület - Andrássy út

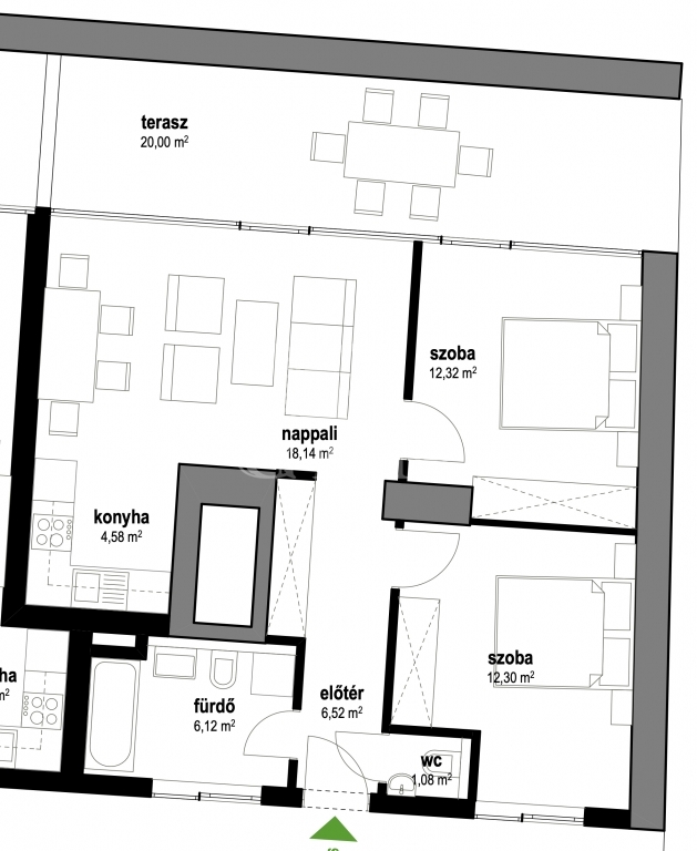
69 m2Alapterület 3 Szoba
207 000 000 Ft Ár
316544Azonosító
További adatok

Utcai Kilátás

Új Állapot

Tégla Szerkezet

19 m2 Erkély/terasz

Megújuló energia Fűtés

Luxus Komfort

Garázs/beálló bérelhető Parkolás

Emelet 3

Legfelső emelet

Van Lift

Kiváló Tömegközlekedés

Amerikai konyhás

Nincs Kertkapcsolat

2021 Építés éve

Közös költség 30 000 Ft

Délnyugati Tájolás

Hitelkalkuláció – a részletekért kattintson valamelyik bank logójára!

Birtokoljon egy részt a világörökség részéből. Budapest legelegánsabb sugárútján valósult meg ez a projekt ahol a korhűen felújított palota legfelső szintjén került kialakításra ez a remek, nagyteraszos, napfényes lakás. Élvezze a belváros kényelmét és, hogy séta távolságban elérhetőek a Pesti Broadway színházai és a város legjobb éttermei. Korszerű gépészettel, felület hűtéssel és fűtéssel és szellőztető rendszerrel van felszerelve, az ablakokon elektromosan mozgatható árnyékolók. Mivel emeletráépítés során került kialakításra a lakás így minden helyiség teljes értékű belmagassággal rendelkezik. A nappaliból nyíló, utcai tájolású terasz kellemes helyszíne lehet a nyáresti vacsoráknak. A hálószobák jól bútorozhatóak, a szerencsés ablak kiosztásnak köszönhetően még a fürdőszoba is ablakos. Az épületen belüli Szerencsés elhelyezkedésnek köszönhetően csupán egy közvetlen szomszédos lakással érintkezik. A szomszédos luxus szálóda szolgáltatásait is a lakók kényelmét szolgálja. A közelben teremgarázs bérelhető vagy 40.000EUR ellenében vásárolható.
Andrássy Róbert

Andrássy Róbert

Hívjon bizalommal

+36-70-367-Mutasd!

További hirdetéseim

Ingatlaniroda
GDN Ingatlanhálózat - REGION
+36 1 225 1184

Küldjön üzenetet

Visszahívást kérek

Hasonló ingatlanok