Eladó Lakás Budapest VI. kerület - Belső Terézváros

119 m2Alapterület 4 Szoba
262 339 000 Ft Ár
357107Azonosító
További adatok

Utcai Kilátás

Új Állapot

Tégla Szerkezet

2 m2 Erkély/terasz

Hőszivattyú Fűtés

Dupla komfort Komfort

Utcán, közterületen Parkolás

Emelet 5

Van Lift

Kiváló Tömegközlekedés

Amerikai konyhás

Nincs Kertkapcsolat

Tetőtéri ingatlan

2023 Építés éve

Közös költség 24 000 Ft

Délnyugati Tájolás

Hitelkalkuláció – a részletekért kattintson valamelyik bank logójára!

Új Építésű Lakás Egyedi Enteriőrrel

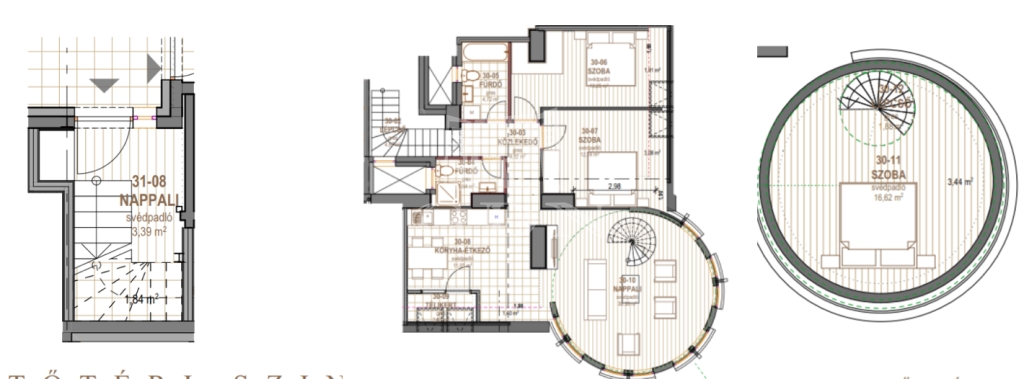
Az Andrássy út közelségében, Budapest szívében kínálok eladásra egy új építésű duplex lakást, amelyben a modern kényelem és városi életstílus harmonikusan összeolvad különleges kör alakú nappalijának köszönhető.
Az apartman kiváló elhelyezkedése lehetővé teszi a város felfedezését. Az Andrássy út és a közeli kulturális és szórakozási lehetőségek várnak felfedezésre.
A város legkiválóbb színházai és kulturális intézményei közvetlenül a lakás közelében találhatóak. A művészet és a pihenés mindig kéznél van, gazdagítva az életedet.
A jelenlegi gazdasági helyzetben az ingatlan vásárlása kiváló és alacsony kockázatú befektetési lehetőséget jelent. Az ingatlanok az infláció elleni védelmet nyújtják, és hosszú távon stabil értéknövekedést generálhatnak.
Hatékony Fűtés & Hűtés:
A modern és energiahatékony rendszerrel van felszerelve, amely nem csak kényelmes, de fenntartása is költséghatékony.
Napfényes Pihenés:
A napfény szerves részévé válik mindennapi életednek ebben az ingatlanban. A tágas helyiségek és a természetes fény inspiráló hangulatot teremtenek.
Időtlen Elegancia:
Az épület klasszikus stílusa harmóniában van a városi környezettel, vonzó vizuális hatást nyújtva. A felújított homlokzat és a gondosan megtervezett részletek stílusos háttért teremtenek.
Személyre Szabott Terek:
Az enteriőrt személyre szabottan alakítjuk ki, így otthonod megfelel az igényeidnek és kifejezi egyediségedet .Az apartman három hálószobához kétl fürdőszoba tartozik, valamint egy 2,4m2-es loggia is. A pontos beosztás az alaprajzon látható.

Ne hagyd ki ezt a különleges lehetőséget, hogy Budapest szívében, az Andrássy út közelében élvezd a modern városi életet saját egyedi otthonodban, miközben stabil befektetést hozol létre az infláció ellen!
Egyedi Konyha-Nappali Egység:
Az apartmanban a konyha és a nappali együtt alkot egy egységet.
Ragadd meg ezt az alkalmat, hogy otthonodat a lélegzetelállító Budapest szívében, az Andrássy út közvetlen közelében hozd létre, és élvezd a modern városi élet minden kényelmét és varázsát, miközben okos befektetéssel védekezel az infláció ellen!
Andrássy Róbert

Andrássy Róbert

Hívjon bizalommal

+36-70-367-Mutasd!

További hirdetéseim

Ingatlaniroda
GDN Ingatlanhálózat - REGION
+36 1 225 1184

Küldjön üzenetet

Visszahívást kérek

Hasonló ingatlanok