Eladó Iroda Budapest XIII. kerület - Váci út

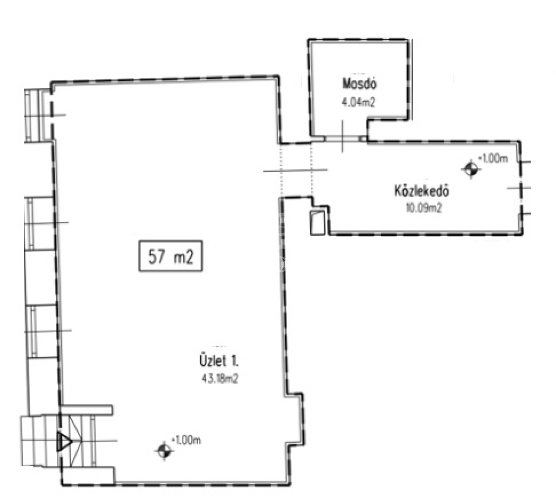
57 m2Alapterület 2 Szoba
116 849 990 Ft Ár
382641Azonosító
További adatok

Utcai Kilátás

Új Állapot

Tégla Szerkezet

Elektromos Fűtés

Utcán, közterületen Parkolás

Emelet Földszint

Van Lift

Kiváló Tömegközlekedés

2023 Építés éve

Nyugati Tájolás

BUDAPEST XIII. kerületben, a DUNA PLÁZA közelében, 51 lakásos, liftes, téglaépítésű társasházban, utcai bejáratú, földszinten elhelyezkedő, 57 m2 alapterületű üzlethelyiség ELADÓ.
A 2 emeletes 51 lakásos, liftes, téglaépítésű társasház a századfordulón épült, melynek teljes átépítése, felújítása történt és kapta meg jelenlegi arculatát. A fűtésről, meleg víz ellátásról elektromos cirkó gondoskodik, radiátor hő leadóval és hűtő-fűtő klíma is beszerelésre került. Az épület energetikai besorolása „B”.

Átadás: 2025. II. negyedév

Az épület biztonságáról 24 órás portaszolgálat gondoskodik. Gépjárművek parkolására a ház előtti kialakított parkolóban van lehetőség.
Az üzlethelyiséget tekintve, a lakók érdekeit szem előtt tartva, a tervek szerint nem vendéglátó egység létesítése a cél, amely esetleg a lakók nyugalmát és biztonságát zavarná.

A folyamatosan fejlődő városrészben a lokáció és a közlekedés kiváló. Közelben a Duna Pláza, Tesco bevásárlóközpont.
Hívjon bizalommal, ha az ajánlat felkeltette érdeklődését.
Bajnóczi Beáta
GDN Region Ingatlan
Bajnóczi Beáta

Bajnóczi Beáta

Hívjon bizalommal

+36-70-489-Mutasd!

További hirdetéseim

Ingatlaniroda
GDN Ingatlanhálózat - REGION
+36 1 225 1184

Küldjön üzenetet

Visszahívást kérek

Hasonló ingatlanok