Eladó Ikerház Budapest XVII. kerület - Rákosligeten eladó ikerház

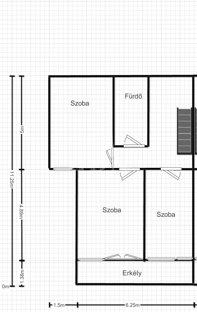
140 m2Alapterület 4 Szoba
129 900 000 Ft Ár
382049Azonosító
További adatok

448 m2 Telek

Kertre néző Kilátás

Közepes Állapot

Tégla Szerkezet

24 m2 Erkély/terasz

Egyedi kazán Fűtés

Dupla komfort Komfort

Saját garázs Parkolás

Tömegközlekedés

Nem Amerikai konyhás

Van Kertkapcsolat

1980 Építés éve

Déli Tájolás

Hitelkalkuláció – a részletekért kattintson valamelyik bank logójára!

KÉT GENERÁCIÓS IKERHÁZ ELADÓ RÁKOSLIGETEN!
IDEÁLIS CSALÁDI OTTHON!


Rákosligeten,1980-as években épült ikerház eladó. A 448 nm-es saroktelken fekvő 3 szintes, 4 szobás, 2 fürdőszobás ingatlan több generáció részére szolgálhat otthonként. Osztatlan közös, ügyvédi megosztással rendelkező ingatlan.

A ház további jellemzői:

AZONNAL KÖLTÖZHETŐ

PER– és TEHERMENTES

- D-i fekvésű

- erkély

- terasz

- minden szoba világos

- egy kádas és egy zuhanyzós fürdőszoba

- kamra

- beépített szekrények

- minden közmű egyedileg mérhető

- klíma

- gondozott kert (fenyőfák, virágok)

- átalakítással 2 generációs házzá alakítható

- kaputelefon

- riasztó

Parkolás: garázs és felszíni beálló

Fűtése: gázkazán.

Közlekedés: kiváló (buszok: 98, 146, 146A, 176E, 198, 276E éjszakai: 908,998 ).
Rákosliget vasútállomás autóbusszal pár percre található. (gyalogosan 5 perc távolságra)
Az M0-ás autóút, autóval 2 percen belül elérhető.

Közelben: bevásárlási lehetőségek, óvoda, iskola, bankok, posta, gyógyszertár stb.

Ügyfeleink részére BANKFÜGGETLEN hitelügyintéző kollégáink szívesen nyújtanak segítséget, hitellel vagy akár CSOK-kal kapcsolatban is!
A hirdetésben feltüntetett adatok és információk csak tájékoztató jellegűek, jogi kötelezettséggel nem bíró jognyilatkozatnak minősülnek, mely nem tekinthető ajánlat tételnek és nem járnak az eladóra nézve kötelező ajánlati kötöttséggel.

Amennyiben felkeltettem az érdeklődését vagy bármely további kérdése lenne, keressen bizalommal.

Akár hétvégén is!

CSA
Csóka Annamária

Csóka Annamária

Hívjon bizalommal

+36-30-445-Mutasd!

Beszélt nyelvek:

További hirdetéseim

Ingatlaniroda
GDN Ingatlanhálózat - Harmónia

Küldjön üzenetet

Visszahívást kérek

Hasonló ingatlanok