Eladó Lakás Budapest IX. kerület - Üllői út

73 m2Alapterület 3 Szoba
125 000 000 Ft Ár
392444Azonosító
További adatok

Utcai Kilátás

Felújított Állapot

Tégla Szerkezet

3 m2 Erkély/terasz

Elektromos Fűtés

Dupla komfort Komfort

Utcán, közterületen Parkolás

Emelet 5

Van Lift

Kiváló Tömegközlekedés

Amerikai konyhás

Nincs Kertkapcsolat

1980 Építés éve

Hitelkalkuláció – a részletekért kattintson valamelyik bank logójára!

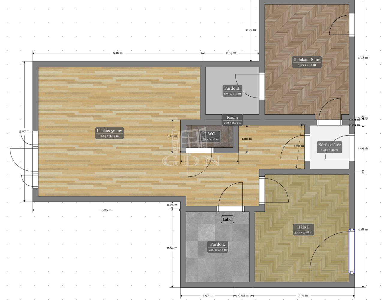
Felújított lakás, két külön lakóegységgel ( kérésre visszaalakítható) a Kálvin térnél!

Eladásra kínálunk a IX. kerület szívében, a Kálvin tér közvetlen közelében, egy teljes körűen felújított, 73 m²-es, napfényes, 5. emeleti lakást.

Az ingatlan jelenleg két különálló lakóegységből áll, de igény esetén átadásig visszaalakítjuk nappali + 2 hálós lakássá.

18 m²-es stúdiólakás

52 m²-es, nappali + hálós lakás

Főbb jellemzők:
Frissen felújított, minőségi anyagokkal, esztétikus és funkcionális kialakítással

Beépített, gépesített konyhák mindkét lakóegységben

Modern, energiatakarékos hűtő-fűtő klímák biztosítják az évszaknak megfelelő komfortot

Külön víz- és villanyórák, alacsony fenntartási költségek.

Elhelyezkedés és közlekedés:
Kiváló lokáció a Kálvin térnél – közvetlen közelben a belvárosi egyetemek (ELTE, Corvinus, BME)

Pár perc sétára: M3-as metró, 4-6-os villamos, troli-, busz- és reptéri járatok

A környék bőséges kulturális, gasztronómiai és kereskedelmi kínálattal rendelkezik

A központi elhelyezkedés ellenére csendes és nyugodt lakókörnyezet.

További információért, megtekintési időpont egyeztetéséhez keressen bizalommal!
Porkoláb Petra

Porkoláb Petra

Hívjon bizalommal

+36-30-324-Mutasd!

További hirdetéseim

Ingatlaniroda
GDN Ingatlanhálózat - Selling Budapest
+36-70-603-3288

Küldjön üzenetet

Visszahívást kérek

Hasonló ingatlanok