Eladó Lakás Budapest VI. kerület - Lázár utca

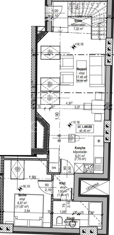
50 m2Alapterület 2 Szoba
256 861 000 Ft Ár
337364Azonosító
További adatok

Panoráma Kilátás

Új Állapot

Tégla Szerkezet

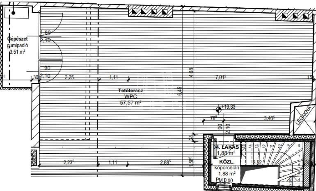
57 m2 Erkély/terasz

Megújuló energia Fűtés

Összkomfort Komfort

Utcán, közterületen Parkolás

Emelet 4

Legfelső emelet

Van Lift

Kiváló Tömegközlekedés

Amerikai konyhás

Nincs Kertkapcsolat

Tetőtéri ingatlan

2026 Építés éve

Délkeleti Tájolás

Hitelkalkuláció – a részletekért kattintson valamelyik bank logójára!

A Szent István Bazilika és az Opera szomszédságában épül a főváros egyik legexkluzívabb fejlesztése.
A lakások egyedisége egyrészt a régi idők és a modern kor ötvözetében rejlik.
Egy klasszikus épület, melynek teljes körű felújítása során, a legfelső szinten, a padlástéren 4 modern, tetőteraszos okos otthon kerül kialakításra.
A Belváros szívében vagyunk, ahol a színházak, éttermek, hangulatos kávéházak és az Andrássy úton található számos vásárlási lehetőségek teszik színesebbé a mindennapjainkat.
Ebben az inspiráló környezetben, panorámás kilátással, a modern kor technológiájával felszerelt lakások várják a leendő új lakókat.

4 db lakás
41-139 m² lakások
Makó Nelly

Makó Nelly

Hívjon bizalommal

+36-70-367-Mutasd!

További hirdetéseim

Ingatlaniroda
GDN Ingatlanhálózat - REGION
+36 1 225 1184

Küldjön üzenetet

Visszahívást kérek

Hasonló ingatlanok