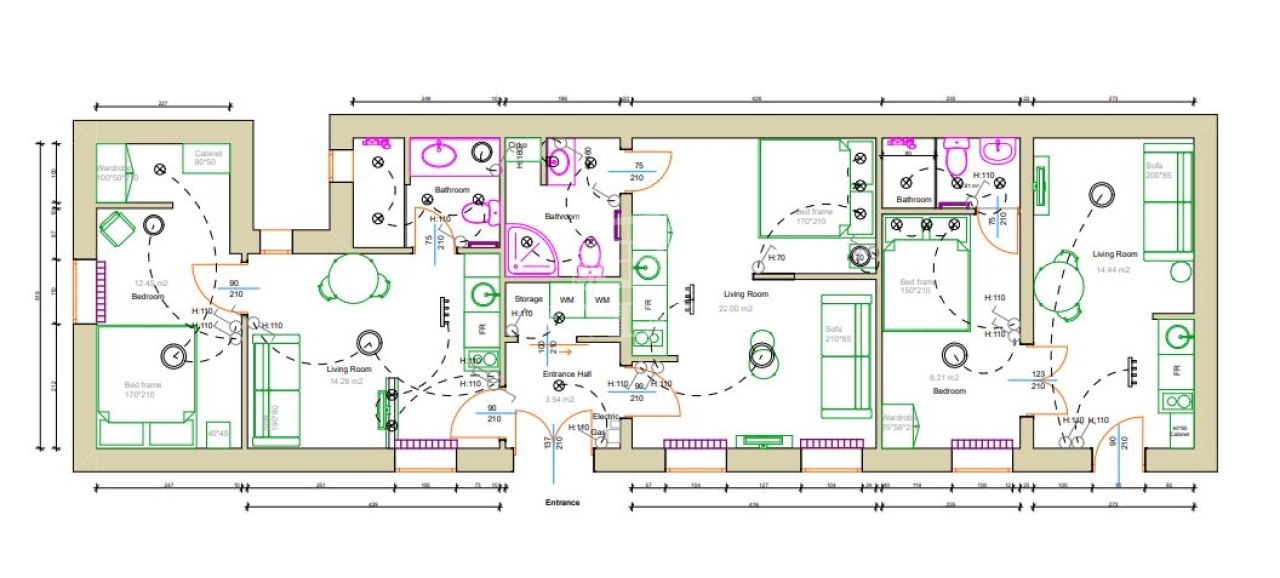
| 90 m2Alapterület | 2 + 1 Szoba |
| 127 610 000 Ft Ár | |
| 387556Azonosító | |
| További adatok | |
Udvari Kilátás
Új Állapot
Tégla Szerkezet
Gáz (cirkó) Fűtés
Összkomfort Komfort
Utcán, közterületen Parkolás
Emelet 4
Legfelső emelet
Van Lift
Jó Tömegközlekedés
Nem Amerikai konyhás
Nincs Kertkapcsolat
1950 Építés éve
Északkeleti Tájolás