Eladó Lakás Budapest VIII. kerület - Német utca

40 m2Alapterület 3 Szoba
63 000 000 Ft Ár
389622Azonosító
További adatok

Kertre néző Kilátás

Újszerű Állapot

Tégla Szerkezet

Egyéb Fűtés

Összkomfort Komfort

Utcán, közterületen Parkolás

Emelet Földszint

Nincs Lift

Kiváló Tömegközlekedés

Amerikai konyhás

Nincs Kertkapcsolat

1871 Építés éve

Közös költség 25 000 Ft

Hitelkalkuláció – a részletekért kattintson valamelyik bank logójára!

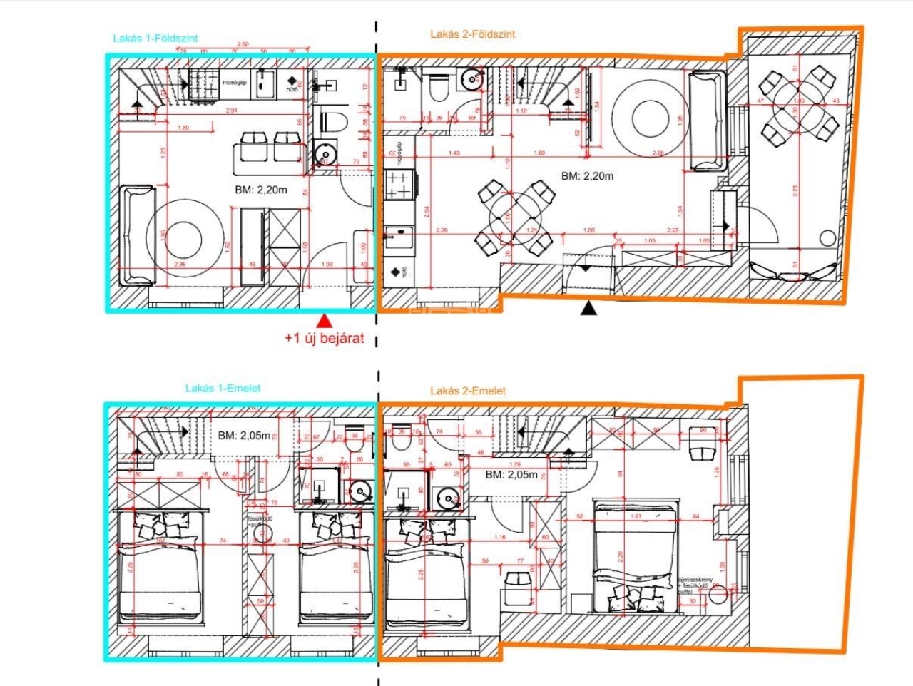
Eladó két külön bejáratú, prémium minőségű, belső kétszintes lakás a Horváth Mihály tér mellett!

Budapest VIII. kerületében, a Német utcában, a Horváth Mihály tér közvetlen közelében, egy hangulatos, szép állapotú társasház földszintjén eladó két külön bejáratú, ügyvédi használati megosztással elválasztott, teljeskörűen felújított, bútorozott és gépesített lakás

Mindkét lakás belső kétszintes, duplakomfortos, és kiváló elosztású:

A földszinten: nappali + konyha + fürdő + WC

Az emeleten: két, egymástól külön zárható hálószoba, valamint további fürdő és WC

Az alsó szinten 220 cm, a felsőn 205 cm a belmagasság.
A lakások külön villany- és vízórával rendelkeznek, fűtésüket BVF elektromos padlófűtés, hűtésüket pedig inverteres klímák (lent és fent) biztosítják.

A vételár tartalmazza a teljes bútorzatot és gépesítést, így az ingatlanok azonnal költözhetők vagy kiadhatók!


"A " LAKÁS

Hasznos alapterület: 40 m²

Alsó szint: 20,3 m²

Felső szint: 19,7 m²

Elrendezés:

Földszint: nappali + konyha + fürdő + WC

Emelet: 2 külön hálószoba + további fürdő és WC

Teljesen felújított, bútorozott, gépesített

Külön mérőórák, BVF padlófűtés, inverteres klíma

Ár: 63.000.000 Ft


"B" LAKÁS

Hasznos alapterület: 51 m²

Alsó szint: 26 m²

Felső szint: 25 m²

Különlegesség: egy 11 m²-es beépített télikert, amely a zöld udvarra néz – igazi ritkaság a belvárosban!
(A télikert nem része az alapterületnek, ezzel együtt kb. 62 m².)

Elrendezés:

Földszint: nappali + konyha + fürdő + WC

Emelet: 2 külön hálószoba + további fürdő és WC

Teljesen bútorozott, gépesített, prémium kivitel

Ár: 73.000.000 Ft




Miért különleges ez az ajánlat?

Két külön bejáratú, külön mérőórás lakás – ideális befektetésre vagy kétgenerációs otthonnak

Központi elhelyezkedés, mégis csendes, zöld udvarra néző környezet

Modern, energiatakarékos megoldások (elektromos padlófűtés, inverteres klímák)

Teljesen bútorozott és gépesített – csak a bőröndöt kell hozni

Kiváló közlekedés: pár perc sétára a Blaha Lujza tér, Rákóczi tér, 4-6-os villamos, M2 és M4 metró
Varga István Ferenc

Varga István Ferenc

Hívjon bizalommal

+36-70-389-Mutasd!

További hirdetéseim

Ingatlaniroda
GDN Ingatlanhálózat - Selling Budapest
+36-70-603-3288

Küldjön üzenetet

Visszahívást kérek

Hasonló ingatlanok