Eladó Lakás Budapest X. kerület - Ihász utca

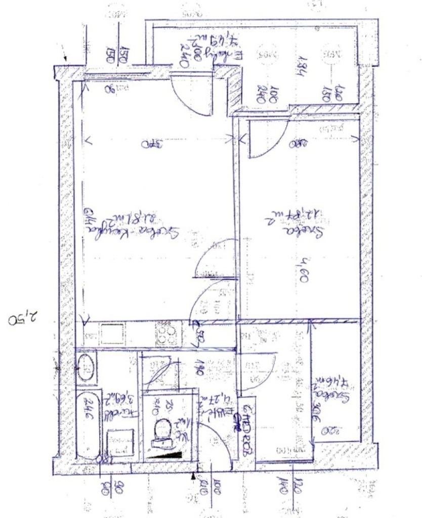
112 m2Alapterület 5 Szoba
99 990 000 Ft Ár
385903Azonosító
További adatok

Udvari Kilátás

Újszerű Állapot

Tégla Szerkezet

7 m2 Erkély/terasz

Házközponti egyedi mérővel Fűtés

Dupla komfort Komfort

Utcán, közterületen Parkolás

Emelet 2

Van Lift

Kiváló Tömegközlekedés

Amerikai konyhás

Nincs Kertkapcsolat

Tetőtéri ingatlan

2011 Építés éve

Közös költség 38 000 Ft

Délkeleti Tájolás

Hitelkalkuláció – a részletekért kattintson valamelyik bank logójára!

Belső kétszintes, 5 szobás, újszerű lakás Óhegyen eladó!

Budapest kedvelt, csendes részén, az Ihász utcában kínálunk megvételre egy 112 m²-es, belső kétszintes, dupla komfortos, 5 szobás lakást, egy 2011-ben épült, háromszintes, újszerű társasház második emeletén.

A lakás házközponti fűtéses, korszerű műanyag termó ablakokkal felszerelt, melyek redőnnyel ellátottak. A padlástér kizárólagos használattal a lakáshoz tartozik – ideális tárolásra vagy akár egyedi kialakításra is.

A konyhabútor gépesítve marad, a további bútorzat megegyezés tárgyát képezi.

Az ingatlan tehermentes, akár 30 napon belül költözhető.
Közlekedés és infrastruktúra kiváló – nyugodt környezet, mégis minden könnyen elérhető!

Ne maradjon le róla – ez a lakás valódi ritkaság a környéken!

További információért és megtekintésért várom hívását a hét bármely napján.

J.Sz.
Jenei Szilvia

Jenei Szilvia

Hívjon bizalommal

+36-20-203-Mutasd!

További hirdetéseim

Ingatlaniroda
GDN Ingatlanhálózat - Harmónia

Küldjön üzenetet

Visszahívást kérek

Hasonló ingatlanok