Eladó Lakás Budapest XIV. kerület - Herminamezőn platánfák árnyékában!

86 m2Alapterület 3 Szoba
115 000 000 Ft Ár
387428Azonosító
További adatok

Kertre néző Kilátás

Felújított Állapot

Tégla Szerkezet

3 m2 Erkély/terasz

Gáz (cirkó) Fűtés

Összkomfort Komfort

Saját garázs Parkolás

Emelet Magasföldszint

Nincs Lift

Kiváló Tömegközlekedés

Amerikai konyhás

Nincs Kertkapcsolat

1918 Építés éve

Délnyugati Tájolás

Hitelkalkuláció – a részletekért kattintson valamelyik bank logójára!

Újdonság az ingatlanpiacon, Herminamezőn, platánfák árnyékában megbújó ingatlanunk került eladósorba!
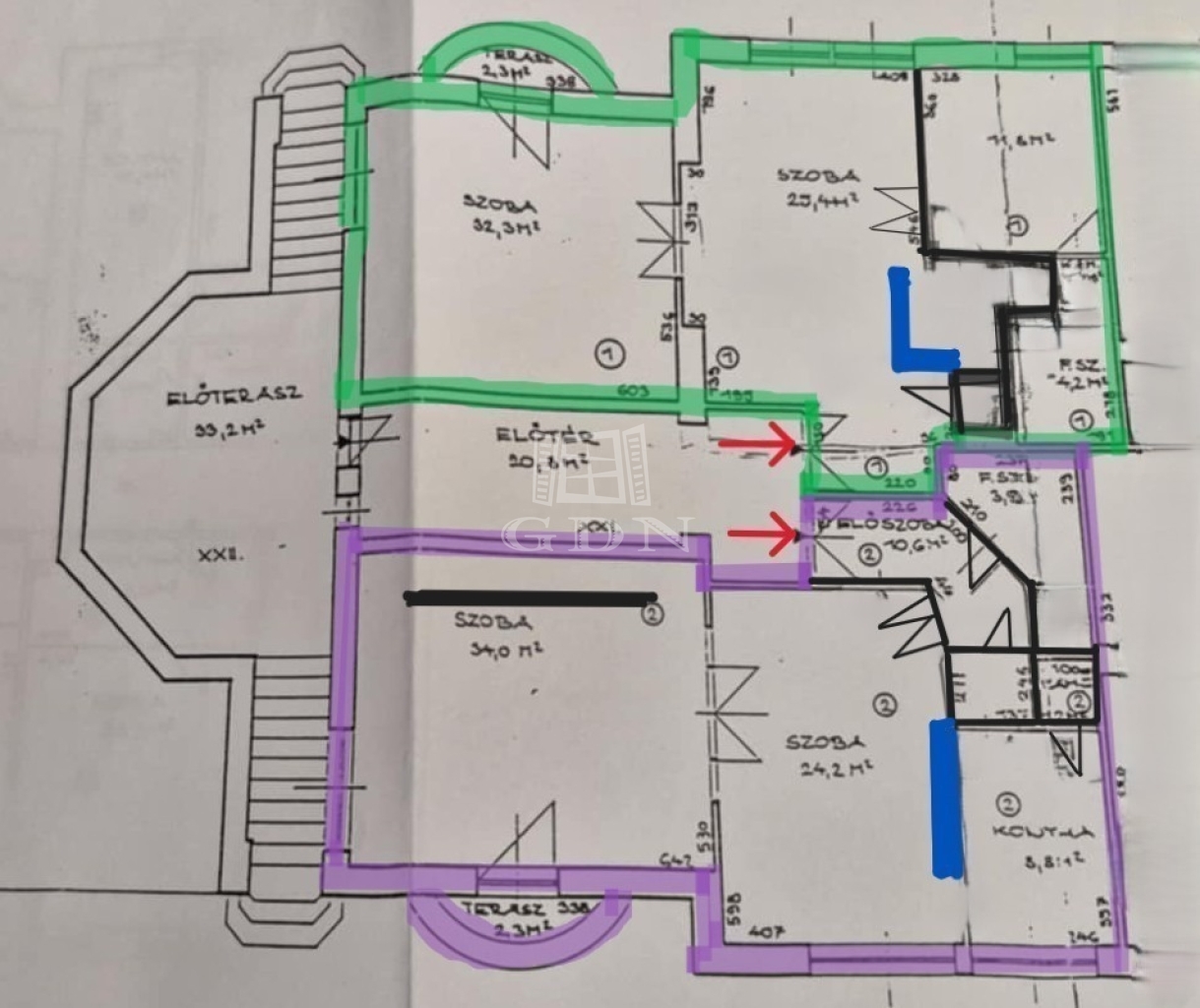
A közkedvelt Amerikai úthoz közel,1918- ban épült villa épület magasföldszintjén helyezkedik el, (alaprajzon zölddel körbe jelölve látható). A ház historizáló - eklektikus stílusban épült, az építész annak idején a házat saját magának tervezte, napjainkban folyamatosan karbantartott, állapot megőrzése, illetve javítása érdekében a társasház folyamatosan törődik vele, pályázatokon indul!
Egyik különlegessége, hogy a társasházba egy tekintélyes 33 nm-es külső teraszról jutunk be, majd az ingatlant egy zárt lépcsőházból közelíthetjük meg, ami a szomszéd ingatlannal kizárólagos használatban van, (a szomszéd 85 nm-es lakás szintén eladó és a kínálatunkban megtekinthető) Az ingatlan az elmúl években irodaként funkcionált, de a belső tér kialakítása alkalmassá teszi lakásként való használatra is, amerikai konyhás nappali +2 vagy kis átalakítással 3 hálószoba állhat rendelkezésre.
Bejáratnál továbbhaladva rögtön megnyílik előttünk a tér, a ragyogóan napfényes nappalis konyhába érkezünk meg, valamint innen elérhető egy vendég wc, tágas dolgozó/háló aminek egy hangulatos kertre néző félkör erkélye is van, valamint helyet kapott egy külön háló és egy zuhanyzóval beépített tágas fürdőszoba is.
Fűtése önnáló gáz církó, tájolása d-dnyi ezért napos, világos, klímával felszerelt, rezsije alacsony gáz és az elektromos áram költsége átlag: 20.500 ft/hó. Állapotát tekintve igényes, rendezett, a fotón látható bútorok igény esetén külön megegyezés alapján megvásárolhatóak.
Parkolásra egy autónak 13,5 nm-es garázs áll rendelkezésre, ára 10 mft, amit a vételár nem tartalmaz. További tároló a pince szinten rendelkezésre áll.
Remek lokációnak köszönhetően egyaránt ajánlom családosoknak, vagy vállalkozóknak is, hiszen egyaránt kiválló lakni, vagy irodai használat céljából is. A közvetlen közelben megtalálható tömegközlekedés, bevásárlási lehetőség, iskola, óvoda stb.
Időpont egyeztetésés alapján megtekinthető!
Lukács Péter

Lukács Péter

Hívjon bizalommal

+36-30-694-Mutasd!

További hirdetéseim

Ingatlaniroda
GDN Ingatlanhálózat - Belváros
+36 1 783 2515

Küldjön üzenetet

Visszahívást kérek

Hasonló ingatlanok