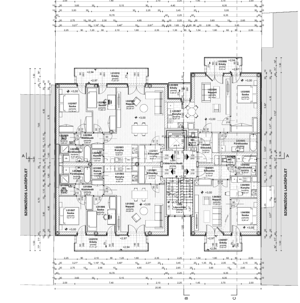
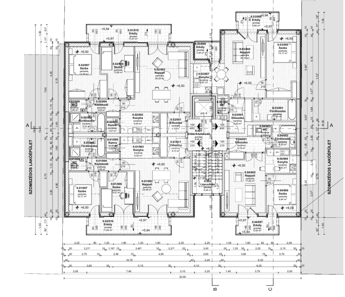
| 846 m2Alapterület | 36 Szoba |
| 450 000 000 Ft Ár | |
| 388504Azonosító | |
| További adatok | |
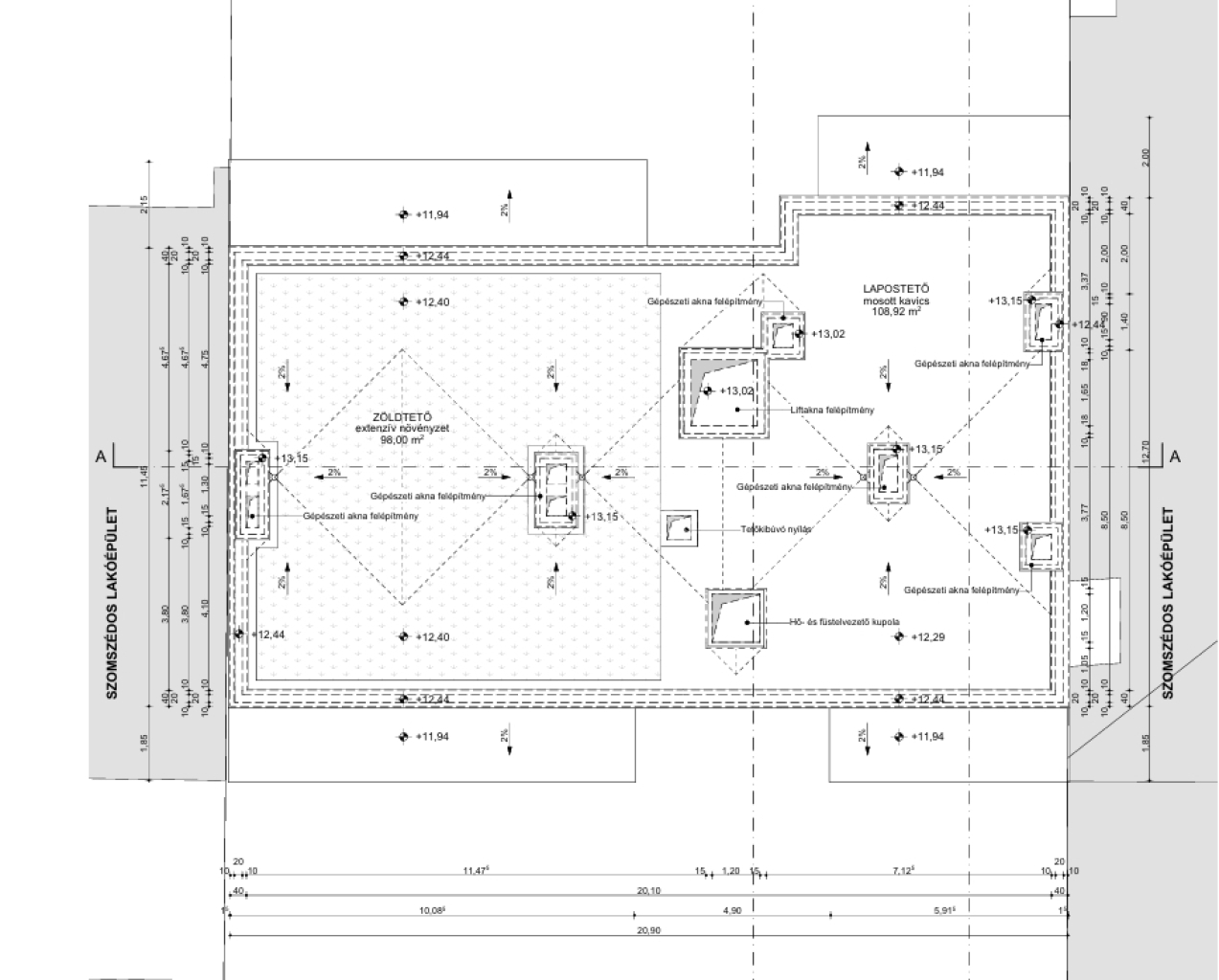
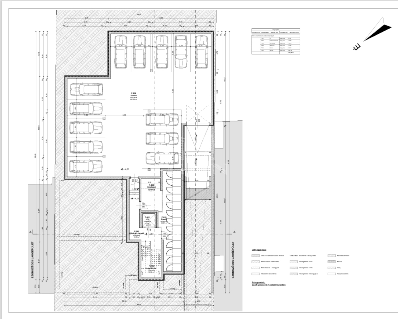
1077 m2 Telek
Utcai Kilátás
Új Állapot
Tégla Szerkezet
204 m2 Erkély/terasz
Házközponti Fűtés
Összkomfort Komfort
Saját garázs Parkolás
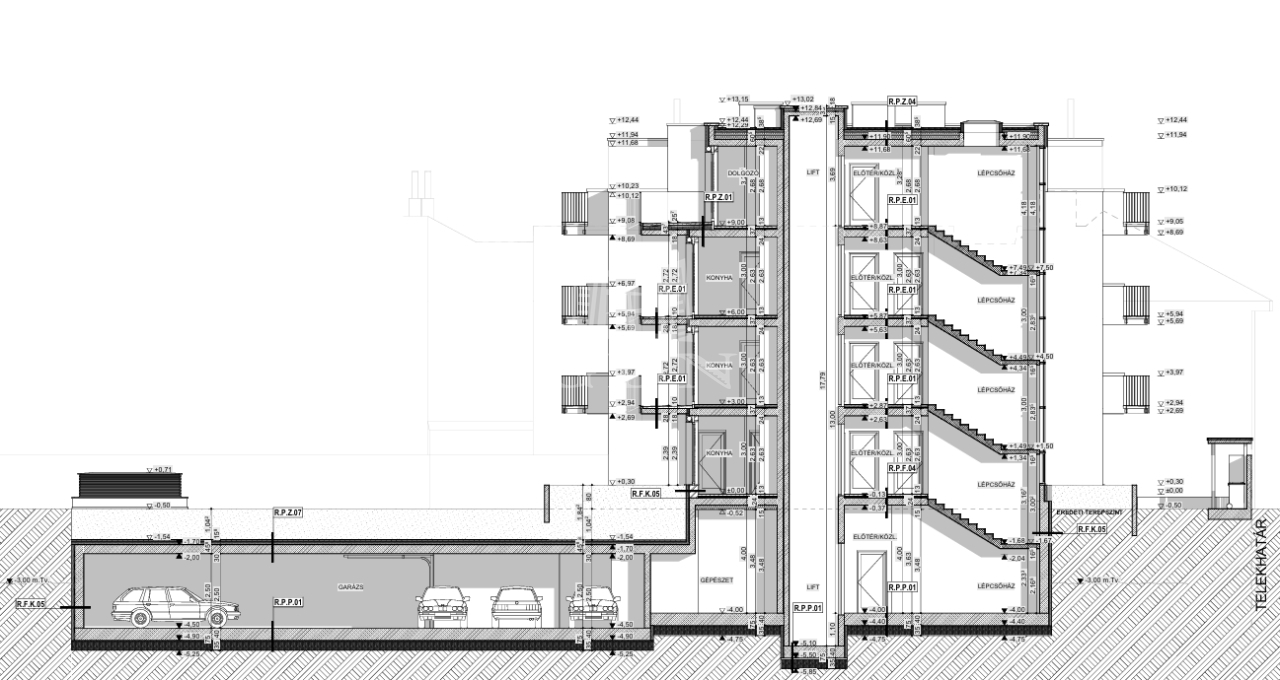
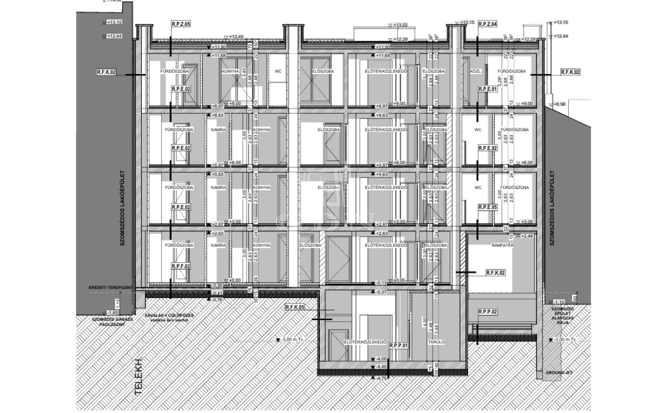
Emelet 3
Legfelső emelet
Van Lift
Kiváló Tömegközlekedés
Amerikai konyhás
Van Kertkapcsolat
Tetőtéri ingatlan
2026 Építés éve
Beszélt nyelvek: