Eladó Lakás Budapest XXIII. kerület - Zsellér dűlő

38 m2Alapterület 2 Szoba
38 000 000 Ft Ár
380892Azonosító
További adatok

Udvari Kilátás

Felújított Állapot

Tégla Szerkezet

Megújuló energia Fűtés

Összkomfort Komfort

Saját beálló Parkolás

Emelet Földszint

Nincs Lift

Tömegközlekedés

Nem Amerikai konyhás

Van Kertkapcsolat

1940 Építés éve

Hitelkalkuláció – a részletekért kattintson valamelyik bank logójára!

Soroksár frekventált részén eladó lakások!

Az ingatlan teljesen felújított, új tetőt kapott, 3 rétegű műanyag nyílászárókkal, hőszivattyús klímával ellátott.
A lakásokhoz saját gépkocsi beálló tartozik.

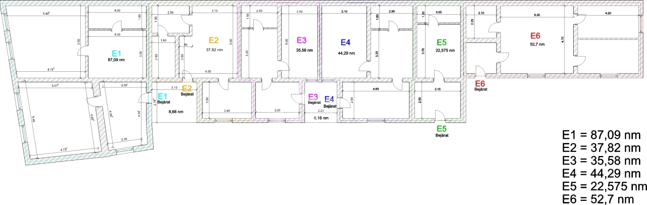
2.sz. lakás 37,82 m2 (E2)
- nappali-konyha 18,1 m2
- szoba 8,5 m2
- fürdő 4,9 m2
- tároló 2 m2

A lakások ügyvédi megosztási szerződéssel kerülnek értékesítésre.

- víz 1db főmérő és lakásonként külön mellékmérők
- villany lakásonként saját mérőórák

Befektetésnek is kiváló, a környéken 170.000-210.000Ft/hó + rezsi áron vannak hasonló kiadó lakások, ami évente 2.000.000Ft bevételt jelenthet.

Amivel segítjük az Ön ingatlanvásárlását:
- ingyenes hitelügyintézés,
- jogi háttér,
- földhivatali ügyintézés,
- energetikai tanúsítvány.

Irodánk 30 éves szakmai tapasztalattal áll ügyfelei rendelkezésére!
Várom szíves megkeresését!
Szirtes Ágnes

Szirtes Ágnes

Hívjon bizalommal

+36-20-268-Mutasd!

További hirdetéseim

Ingatlaniroda
GDN Ingatlanhálózat - Csombók ELAN
+36 24 516 120

Küldjön üzenetet

Visszahívást kérek

Hasonló ingatlanok