Eladó Családi ház Hévízgyörk - Csendes utcában

254 m2Alapterület 6 Szoba
99 500 000 Ft Ár
390870Azonosító
További adatok

781 m2 Telek

Udvari Kilátás

Jó állapotú Állapot

Tégla Szerkezet

24 m2 Erkély/terasz

Elektromos Fűtés

Dupla komfort Komfort

Saját garázs Parkolás

Tömegközlekedés

Amerikai konyhás

Van Kertkapcsolat

2000 Építés éve

Délnyugati Tájolás

Hitelkalkuláció – a részletekért kattintson valamelyik bank logójára!

Eladó szépen karbantartott villa jellegű ingatlan, kivételes adottságokkal

Megvételre kínálok egy 2000-ben téglából épült, folyamatosan karbantartott és korszerűsített, valódi villa karakterrel rendelkező ingatlant, költözés miatt.

Az épület 2021 óta átfogó megújításon esett át, melynek során a tulajdonos kiemelt figyelmet fordított a gépészetre, a fűtési rendszer korszerűsítésére, festésekre és az elektromos hálózat fejlesztésére.

A fűtés és hűtés 10 darab, modern, wifis klímával megoldott, a melegvízellátást új Ariston villanybojler biztosítja. Az ingatlan 3×16A elektromos betáplálással rendelkezik.

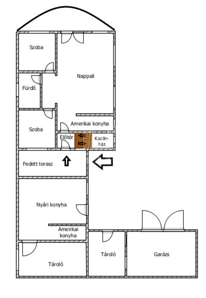
Főépület:

Két szint

Szintenként kb. 127 m², összesen 254 m² lakótér

Alsó szint:

- nagyméretű amerikai konyhás nappali

- hálószoba

- gyerekszoba

- fürdőszoba

- kamra


Felső szint:

- dolgozószobák

- vendégszoba

- gardrób

- külön WC és zuhanyzó

- mozihelyiség motoros vetítővászonnal



Az ingatlan belső és külső tereit eredeti, kézzel kidolgozott gipszstukkók, klasszikus oszlopos megoldások és íves nyílászárók teszik különlegessé, amely valódi villa megjelenést biztosít.

Telek és további épületek:

- 781 m² saját telek

- 85 m²-es különálló hátsó épület (felújítandó, bővíthető)

- 50 m²-es 2 állásos garázs, amelyből további lakótér is leválasztható

Többgenerációs együttélés vagy akár 3 különálló lakóegység kialakítása is lehetséges, adott esetben pedig társasházzá is alakítható!


Az utcafronton kényelmes parkolási lehetőség áll rendelkezésre, akár 4 autó számára is.


INGYENES hitel tanácsadás!
CSOK Ügy intézés!
3% -os OSP hitel ügyintézés!

BANKFÜGGETLEN hitelcentrumunk minden elérhető bank és hitelintézet ajánlatát versenyezteti az Ön kedvéért, ráadásul DÍJMENTESEN.
Önnek nincs más dolga, mint elbeszélgetni munkatársunkkal, aki a hallott információk alapján versenyre hívja a bankokat, hogy Ön hosszú távon is a legjobb konstrukciót kaphassa. A legjobb ajánlatokból végül Ön választhatja ki a nyertest.
Munkatársaink sokéves szakmai tapasztalattal várják Önt, előre egyeztetve akár a normál munkaidő után is.

Amennyiben hirdetésem felkeltette érdeklődését, várom hívását, akár hétvégén is! S.S.
Suba Sándor

Suba Sándor

Hívjon bizalommal

+36-30-556-Mutasd!

További hirdetéseim

Ingatlaniroda
GDN Ingatlanhálózat - Sashalom

Küldjön üzenetet

Visszahívást kérek

Hasonló ingatlanok