Eladó Családi ház Kecskemét - Új építésű kertvárosi rész

69 690 000 m2Alapterület 4 Szoba
69 690 000 Ft Ár
360094Azonosító
További adatok

500 m2 Telek

Kertre néző Kilátás

Új Állapot

Tégla Szerkezet

11 m2 Erkély/terasz

Gáz (cirkó) Fűtés

Összkomfort Komfort

Saját beálló Parkolás

Közepes Tömegközlekedés

Amerikai konyhás

Van Kertkapcsolat

2023 Építés éve

Hitelkalkuláció – a részletekért kattintson valamelyik bank logójára!

Otthonok és megoldások.
Költözzön még idén!
Leinformálható, nagy múlttal rendelkező, önerőből finanszírozó kivitelezőtől vegye meg álmai otthonát.
Mini lakópark épül, Kecskemét Katonatelep új részén, szépen beépített, rendezett utcában, egy ház már kulcsrakész állapotban van, másik alapozása idén elkezdődött, további négy otthon jövőre készül el.

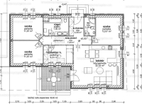
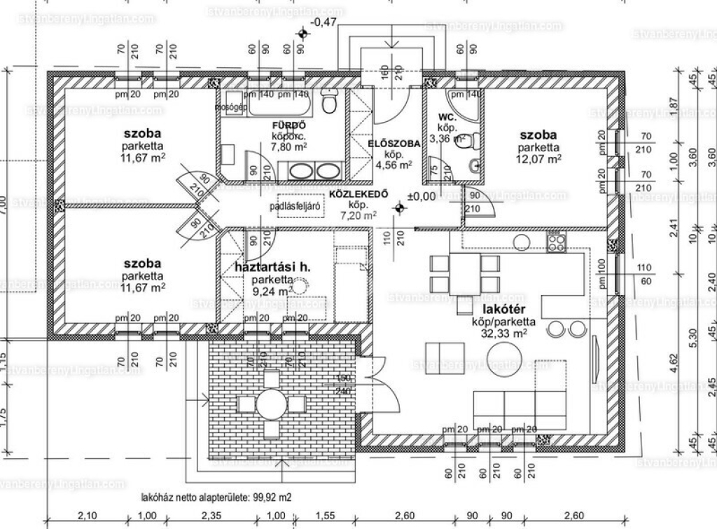
500 nm saroktelken, nettó 100 nm, egyszintes, jó elosztású új építésű családi ház eladó. Igény esetén belső terek, színek, burkolatok még variálhatóak.
Nappali-konyha-étkező-előszoba-közlekedő- négy hálószoba--két wc-fürdőszoba-terasz.
Minőségi anyagokból építve:
-Leier Plan téglafalazat
-15 cm vastag homlokzati szigetelés
-30 cm vastag födémszigetelés
- 6 kamrás, gelaan 8000 hőszigetelt műanyag nyílászárók, fehér színben,rejtett, vakolhatósínes redőnyökkel
-Mindenhol padlófűtés, gáz cirkó kazánról
-Klíma lehetőség kiépítve
A felsorolás nem teljeskörű, megtekintés után további kérdéseire is választ kap.
Referenciákat tudunk mutatni.
CSOK igényelhető+ 5% Áfa visszaigénylés még idén + kedvező hitel lehetőség.

Nyakunkon a határidő: sietnie kell annak, aki még idén igényelne csokot vagy babavárót.
A CSOK igényléseket a jelenlegi ismereteink alapján 2023. december 31-ig lehet benyújtani azokban a pénzintézetekben, ahol foglalkoznak ezzel, de az év végi határidő miatt ebben lehetnek eltérések. A 2022. év végi, babaváró hiteles tapasztalatok alapján a bankok dönthetnek úgy, hogy december 31. előtt felfüggesztik az igénylések befogadását, számolva azzal, hogy azokat még el is kell bírálni. Sőt, mivel a CSOK igénylések bírálata az értékbecslés miatt hosszabb időt vesz igénybe, mint a babaváró hiteleké, az a forgatókönyv is elképzelhető, hogy a bankok egy része már novemberben kitűzi a végső határidőt. A rendelet ingatlanvásárlásnál a bankok számára az igénylés benyújtásától számított 30 napos határidőt ír elő.
Jövő évtől megszűnik jelenlegi formájában a csok támogatás, a babaváró hitel pedig kevesebbek számára lesz csak elérhető.
Ha új, értékálló ingatlant keres, ne habozzon!

INGYENES hitel tanácsadás!
BANKFÜGGETLEN hitelcentrumunk minden elérhető bank és hitelintézet ajánlatát versenyezteti az Ön kedvéért, ráadásul DÍJMENTESEN.
Önnek nincs más dolga, mint elbeszélgetni munkatársunkkal, aki a hallott információk alapján versenyre hívja a bankokat, hogy Ön hosszú távon is a legjobb konstrukciót kaphassa. A legjobb ajánlatokból végül Ön választhatja ki a nyertest.
Munkatársaink sokéves szakmai tapasztalattal várják Önt, előre egyeztetve akár a normál munkaidő után is.
Megtekintésért várom megtisztelő hívását!
Vörösmarty Attila

Vörösmarty Attila

Hívjon bizalommal

+36-30-197-Mutasd!

További hirdetéseim

Ingatlaniroda
GDN Ingatlanhálózat - STOP Ingatlan
+36 76 536 091

Küldjön üzenetet

Visszahívást kérek

Hasonló ingatlanok