Eladó Lakás Kecskemét - Bányai Júlia Gimnázium közeli

74 m2Alapterület 3 Szoba
84 500 000 Ft Ár
385745Azonosító
További adatok

550 m2 Telek

Udvari Kilátás

Új Állapot

Tégla Szerkezet

6 m2 Erkély/terasz

Hőszivattyú Fűtés

Összkomfort Komfort

Saját garázs Parkolás

Emelet 1

Nincs Lift

Tömegközlekedés

Amerikai konyhás

Van Kertkapcsolat

2026 Építés éve

Délnyugati Tájolás

Hitelkalkuláció – a részletekért kattintson valamelyik bank logójára!

Otthonok és Megoldások!
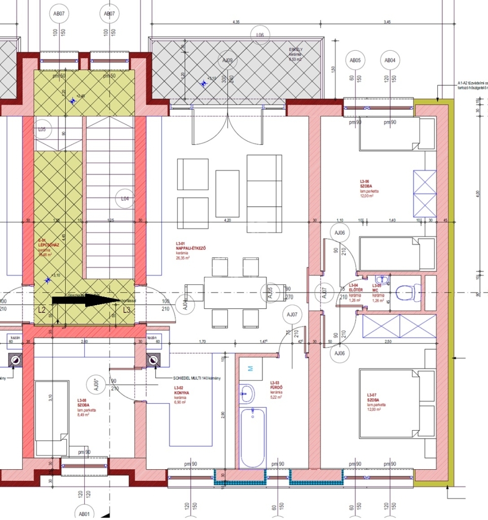
2026 júliusi kulcsrakész átadással, belváros közeli, most épülő, I. emeleti, nappali+3 szobás, 73,4 nm, erkélyes lakás, 5 lakásos társasházban eladó.
A lakás főbb jellemzői:
- Nappali-konyha-étkező egy légtérben
- 3 külön nyíló szoba
- Fürdő, mosdó külön
- 6,5 nm erkély
- Közös tároló
- Tégla falazat (Porotherm 30-as)
- Közetgyapot szigetelés (15 cm)
- Fa mintátatú műanyag nyílászáró
- Hőszivattyús fűtési rendszer
- Hűtő-fütő klíma
- garázs vagy gépkocsi beálló külön vásárolható

A lakás 20% önerővel lefoglalható. A lakáshoz további 11,5 millió Forintért 18 nm, saját garázs vásárolható. Amennyiben felkeltette érdeklődését , a teljeskörű műszaki dokumentációt rendelkezésére bocsájtjuk irodánkban, továbbá tájékoztatjuk a fizetési feltételeket, s igény esetén a hitelfelvételben is segítséget nyújtunk. Hívjon bátran!
Zombori Mátyás

Zombori Mátyás

Hívjon bizalommal

+36-30-616-Mutasd!

További hirdetéseim

Ingatlaniroda
GDN Ingatlanhálózat - STOP Ingatlan
+36 76 536 091

Küldjön üzenetet

Visszahívást kérek

Hasonló ingatlanok