Eladó Családi ház Kiskunfélegyháza - belváros

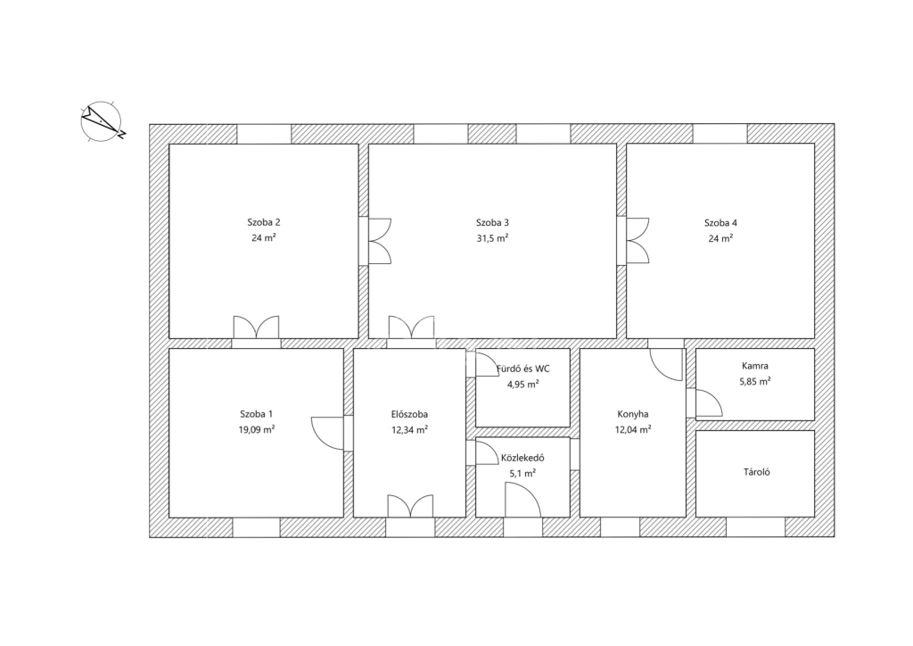
146 m2Alapterület 4 Szoba
42 000 000 Ft Ár
383430Azonosító
További adatok

866 m2 Telek

Utcai Kilátás

Felújítandó Állapot

Tégla Szerkezet

Egyéb Fűtés

Egyéb Komfort

Saját beálló Parkolás

Kiváló Tömegközlekedés

Nem Amerikai konyhás

Van Kertkapcsolat

1925 Építés éve

Délnyugati Tájolás

Hitelkalkuláció – a részletekért kattintson valamelyik bank logójára!

Otthonok és Megoldások = Boldogság!

Felújítandó polgári ház kiváló elhelyezkedéssel – sokoldalú lehetőség belvárosban!

Eladásra kínálunk egy kivételes adottságokkal rendelkező, felújítandó állapotú polgári jellegű családi házat frekventált, belvárosi környezetben. Az ingatlan egy 866 m²-es telken helyezkedik el, jelenleg mintegy 146 m²-es alapterülettel rendelkezik.

A ház a múlt század elején épült, hangulatos homlokzata megőrizhető, ugyanakkor a telek adottságai lehetőséget kínálnak új épületek kialakítására is. Ideális választás lehet mindazoknak, akik saját igényeikre szabott otthont alakítanának ki, de befektetők, vállalkozók számára is remek lehetőség: akár iroda, rendelő, szolgáltatóegység vagy vendéglátóhely is megvalósítható.

A környék infrastruktúrája kiemelkedő, a központi elhelyezkedés kiváló megközelíthetőséget és sokoldalú hasznosítást tesz lehetővé – mind lakó-, mind üzleti célra.

További részletekért hívjon bizalommal!
Kocsis Zoltán

Kocsis Zoltán

Hívjon bizalommal

+36-30-667-Mutasd!

További hirdetéseim

Ingatlaniroda
GDN Ingatlanhálózat - STOP Ingatlan
+36 76 536 091

Küldjön üzenetet

Visszahívást kérek

Hasonló ingatlanok