Kiadó Üzlethelyiség Budapest VII. kerület - Keleti pályaudvarhoz közel

327 m2Alapterület 0 Szoba
800 000 Ft /Hó Ár
357864Azonosító
További adatok

Utcai Kilátás

Jó állapotú Állapot

Tégla Szerkezet

Gáz (cirkó) Fűtés

Utcán, közterületen Parkolás

Kiváló Tömegközlekedés

1900 Építés éve

Közös költség 100 000 Ft

Keleti Tájolás

KIADÓ NAGYMÉRETŰ ÜZLETHELYISÉG A KELETI PÁLYAUDVAR KÖZELÉBEN AZONNAL!!!

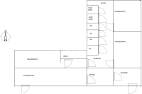
A Keleti pályaudvar közelében kiadó egy nagyméretű üzlethelyiség azonnal.birtokba vehető. Az üzlethelyiség több helyiségből áll, melyek szőnyegpadlóval és járólappal ellátottak. 2 zuhanyozós fürdőszoba van, valamint 4 mellékhelyiség.
A fürdőszoba és a WC járólapos valamint a közlekedő is járólapos.
80nm-es tetőtérbeépíhetőség!!!
A mérete 327 m2.
-Közös költség. 100.000 Ft/hó
-Bérleti díj: 800.000 fT/hó
-Min.bérleti idő: 12 hónap.
- Kaució: 3 hónap.

Infrastruktúra: Rákóczi úton lévő ALDI és egyéb üzletek.
Közlekedés: 1-es és 4-es METRO.

Bérleti szerződést közjegyző jelenlétével kötjük meg.
Sinkó Lászlóné Nóra

Sinkó Lászlóné Nóra

Hívjon bizalommal

+36-30-659-Mutasd!

Beszélt nyelvek:

További hirdetéseim

Ingatlaniroda
GDN Ingatlanhálózat - Mandala Ingatlaniroda

Küldjön üzenetet

Visszahívást kérek

Hasonló ingatlanok