Eladó Családi ház Velence - Két ház egy telken eladó

165 m2Alapterület 5 + 1 Szoba
176 000 000 Ft Ár
356756Azonosító
További adatok

1081 m2 Telek

Kertre néző Kilátás

Felújított Állapot

Tégla Szerkezet

42 m2 Erkély/terasz

Gáz (cirkó) Fűtés

Dupla komfort Komfort

Saját garázs Parkolás

Tömegközlekedés

Nem Amerikai konyhás

Van Kertkapcsolat

1984 Építés éve

Hitelkalkuláció – a részletekért kattintson valamelyik bank logójára!

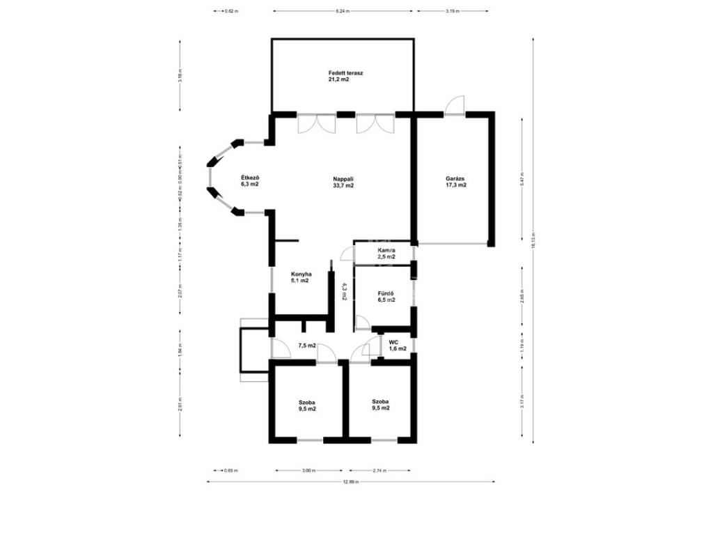
4711. Velencén, pár perc gyalogos távolságra a vasútállomástól és a Velencei-tótól, 2016 és 2021-között felújított, nettó 90 m2-es, földszintes, nappali + 2 hálószobás, riasztó-, és kamera rendszerrel szerelt családi ház, nettó 54 m2 lakóterületű, egész évben lakható melléképülettel, 1081 m2-es telken, garázzsal, pincével, fedett teraszokkal eladó. A két különálló, egész évben lakható épületek lehetővé teszik több generáció kényelmes együttélését, a szobakiadást, otthoni iroda kialakítását vagy vállalkozás üzemeltetését.

A nettó 90 m2 lakóterületű, 40 m2-es nappali - étkezővel rendelkező, két hálószobás, gázcirkó fűtéssel és 6,5 kW-os + 3,5 kW-os klímákkal, illetve fűtőpanelekkel is fűthető, földszintes, beton födémes, lemezcserép fedéses, 30-as tégla falazattal, 30 cm-es kőzetgyapot födém szigeteléssel, fa szerkezetű dupla üvegezésű nyílászárókkal rendelkező családi házhoz 21 m2-es fedett terasz, 16 m2-es pince és 17,3 m2-es, egyállásos garázs kapcsolódik.

A nettó 54 m2 lakóterületű, klímákkal és fűtőpanelekkel fűthető, szintén 21 m2-es fedett terasszal rendelkező tégla melléképület egész évben lakható/hasznosítható.

Az új elektromos hálózat 3×25A erősségű. A melléképület fogyasztása külön is mérhető. A tetőkre összesen 10 kW napelem rendszer lett telepítve.
Szegedi Éva

Szegedi Éva

Hívjon bizalommal

+36-20-927-Mutasd!

További hirdetéseim

Ingatlaniroda
GDN Ingatlanhálózat - Immo Velence
+36 22 570 171

Küldjön üzenetet

Visszahívást kérek

Hasonló ingatlanok