Eladó Családi ház Tura - Csendes mellékutcában

216 m2Alapterület 5 Szoba
89 900 000 Ft Ár
391991Azonosító
További adatok

1039 m2 Telek

Kertre néző Kilátás

Jó állapotú Állapot

Tégla Szerkezet

15 m2 Erkély/terasz

Gáz (cirkó) Fűtés

Dupla komfort Komfort

Saját garázs Parkolás

Kiváló Tömegközlekedés

Amerikai konyhás

Van Kertkapcsolat

1990 Építés éve

Délnyugati Tájolás

Hitelkalkuláció – a részletekért kattintson valamelyik bank logójára!

AKÁR 2 GENERÁCIÓ SZÁMÁRA IS ALKALMAS, HATALMAS TEREKKEL!

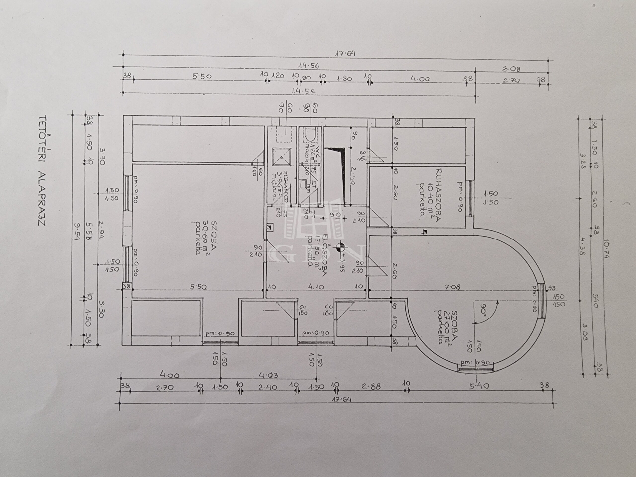
Megvételre kínálok Tura közkedvelt és csendes részén, 1039 nm-es telken fekvő, nettó 215,93 nm, bruttó 315 nm-es, 1990-ben épült, tégla falazatú, tágas, 5 szobás, dupla komfortos, jó állapotú családi házat.

Az épületet gáz és vegyes kazán, 1 db klíma, 5 szoba, amerikai konyha - nappali, 2 füdőszoba, 100 nm-es pince, valamint az emeleten kb. 30 négyzetméternyi rejtett tároló jellemzi, a biztonságért kamera és riasztó rendszer felelős.

2010-2018 között megújult az épület, melynek keretében az alábbi munkák lettek elvégezve:
- fali és padlóburkolatok cseréje
- fürdőszoba teljes átalakítása
- elektromos padlófűtés a konyhában
- Hátsó terasz kialakítása
- nyílászárók cseréje
- klíma telepítése
- első lépcső + terasz burkolatának cseréje


Buszmegálló, bolt, orvos, iskola, óvoda, bölcsőde 6-10 perc sétára található.

A szomszédok kedvesek és barátságosak, mellyel egy igazán élhető lakóközösséget alkotnak.


Csere értékegyeztetéssel lehetséges újépítésű lakásra vagy kisebb, felújított családi házra a Balaton környékén és Hatvan városában!


AZ INGATLAN PER, TEHER és IGÉNYMENTES!

INGYENES hitel tanácsadás!

CSOK+, Falusi CSOK és OSP ügyintézés!

BANKFÜGGETLEN hitelcentrumunk minden elérhető bank és hitelintézet ajánlatát versenyezteti az Ön kedvéért, ráadásul DÍJMENTESEN.

Önnek nincs más dolga, mint elbeszélgetni munkatársunkkal, aki a hallott információk alapján versenyre hívja a bankokat, hogy Ön hosszú távon is a legjobb konstrukciót kaphassa. A legjobb ajánlatokból végül Ön választhatja ki a nyertest.
Munkatársaink sokéves szakmai tapasztalattal várják Önt, előre egyeztetve akár a normál munkaidő után is.

Amennyiben a hirdetés felkeltette érdeklődését, várom hívását, akár hétvégén is! S.S.
Suba Sándor

Suba Sándor

Hívjon bizalommal

+36-30-556-Mutasd!

További hirdetéseim

Ingatlaniroda
GDN Ingatlanhálózat - Sashalom

Küldjön üzenetet

Visszahívást kérek

Hasonló ingatlanok