Eladó Családi ház Nyárlőrinc - Vadvirág utca

103 m2Alapterület 4 Szoba
72 900 000 Ft Ár
385424Azonosító
További adatok

815 m2 Telek

Udvari Kilátás

Építés alatt Állapot

Tégla Szerkezet

20 m2 Erkély/terasz

Gáz (cirkó) Fűtés

Összkomfort Komfort

Saját beálló Parkolás

Tömegközlekedés

Amerikai konyhás

Van Kertkapcsolat

2026 Építés éve

Hitelkalkuláció – a részletekért kattintson valamelyik bank logójára!

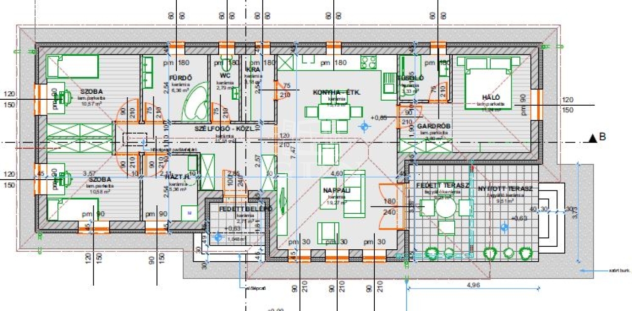
Nyárlőrincen, csendes, kertvárosi, családi házas városrészben 815 nm telken új építésű nettó 103 nm lakóterű, nappali+3 szobás családi ház eladó. Az ingatlan jól megközelíthető, aszfaltos, teljes közművesített utcában található. Hőszigetelt, tégla falszerkezetű, 20 nm burkolt teraszos (10 nm fedett, 10 nm nyitott), nyílászárók fehér színű műanyagok, 3 rétegű üvegezéssel, elektromos redőnnyel, szúnyoghálóval felszerelve. Fűtése gáz cirkó kazánnal, padlófűtés hőleadóval és hűtő-fűtő klímaberendezéssel kiegészítve megoldott. A vételár tartalmaz továbbá led belső lámpákat, tereprendezést, térkő járdát és a kerítést is.
Átgondolt elosztású, minőségi alapanyagok felhasználásával készülő, magas műszaki tartalommal átadásra kerülő ház, amely az élhetőségre és fenntarthatóságra fókuszál. További részletekért, telek megtekintéséért várom hívását!
Földi Margit

Földi Margit

Hívjon bizalommal

+36-30-576-Mutasd!

További hirdetéseim

Ingatlaniroda
GDN Ingatlanhálózat - STOP Ingatlan
+36 76 536 091

Küldjön üzenetet

Visszahívást kérek

Hasonló ingatlanok