Eladó Lakás Székesfehérvár - Belváros

51 m2Alapterület 1 + 1 Szoba
85 900 000 Ft Ár
392079Azonosító
További adatok

Utcai Kilátás

Új Állapot

Tégla Szerkezet

13 m2 Erkély/terasz

Hőszivattyú Fűtés

Összkomfort Komfort

Garázs/beálló vásárolható Parkolás

Emelet 2

Nincs Lift

Kiváló Tömegközlekedés

Amerikai konyhás

Nincs Kertkapcsolat

2026 Építés éve

Hitelkalkuláció – a részletekért kattintson valamelyik bank logójára!

L-004718 Székesfehérvár egyik legkeresettebb, rendezett városrészében, a belvárostól néhány perc sétára kínáljuk ezt a mindössze 7 lakásos, elegáns társasház egyik kiemelt otthonát.

Átadás: 2026 Q4

A kettő szintes, tetőtér-beépítéses épület modern megoldásai, nagy üvegfelületei és minőségi anyaghasználata világos, élhető tereket biztosítanak.

A lakás ideális választás városi életformát kedvelőknek, családoknak vagy otthonról dolgozóknak.
A kényelmet zárt garázs és felszíni parkoló (külön megvásárolható), a biztonságot kaputelefonos távnyitó rendszer biztosítja.

Kiváló elhelyezkedés, ahol minden elérhető: iskola, óvoda, üzletek, orvosi ellátás, közlekedés és szabadidős lehetőségek pár perc sétával.

Minőség, nyugalom, exkluzív környezet – kompromisszumok nélkül.

A projekt megbízható beruházó által valósul meg, több referencia épülettel, társasházzal rendelkezik a városban.

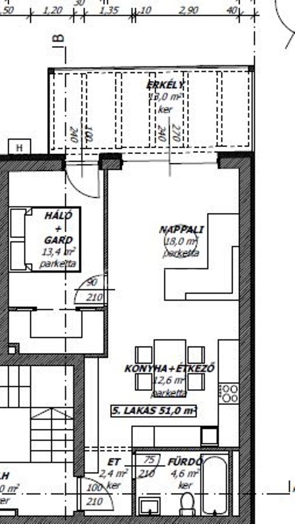
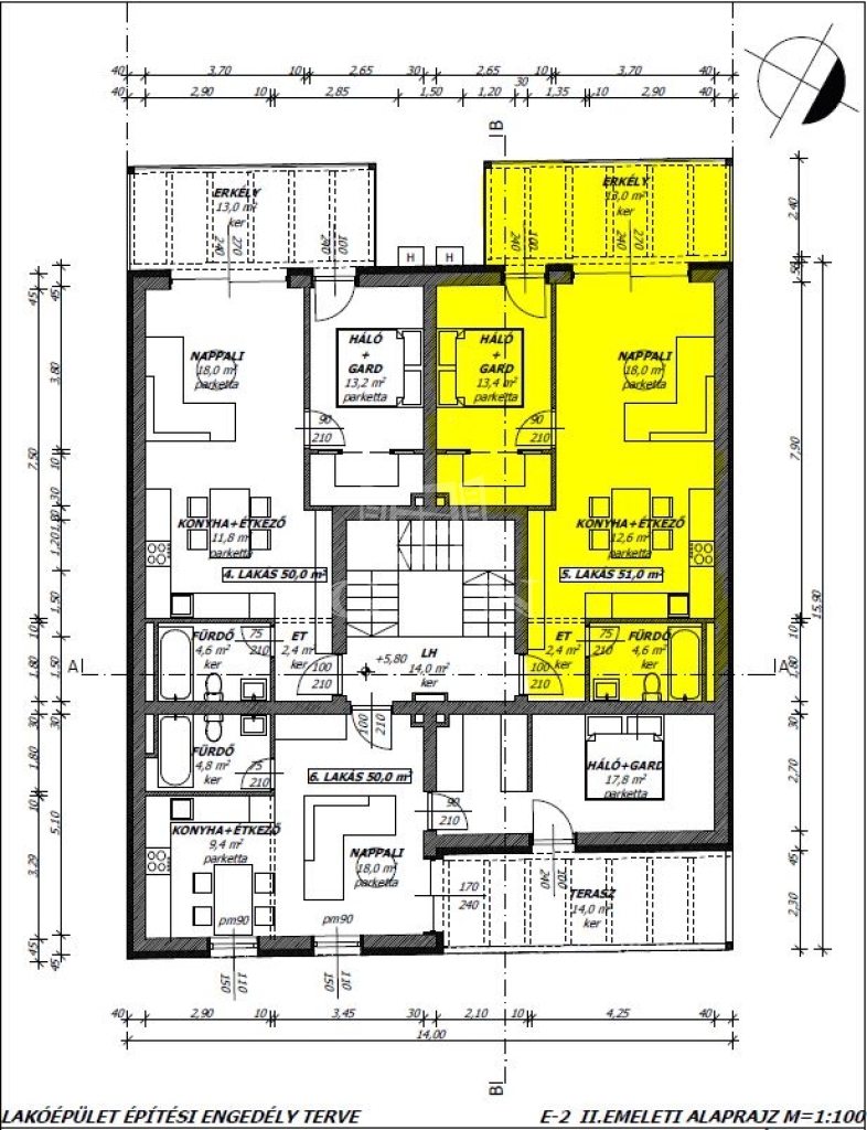
A lakás alaprajza és a helységek listája a képek között megtalálható.

Finanszírozás:

Az ingatlan alkalmas állami támogatások és kedvezményes hitelkonstrukciók igénybevételére (CSOK Plusz, Otthon Start, Babaváró). Irodánk teljes körű, díjmentes ügyintézést biztosít.

Irányár: 85,9 millió Ft

Amennyiben felkeltette az érdeklődését, hívjon bizalommal, és egyeztessünk időpontot a megtekintésre!

Éljen ingyenes, személyre szabott hitelügyintézés szolgáltatásunkkal. Segítünk továbbá adásvételhez szükséges ügyvédi közreműködésben, energetikai tanúsítvány, valamint értékbecslés elkészítésében.

For English details please send us a message or an e-mail, thank you
Koncz András

Koncz András

Hívjon bizalommal

+36-20-933-Mutasd!

További hirdetéseim

Ingatlaniroda
GDN Ingatlanhálózat - Märcz Kft
+36 22 503 000

Küldjön üzenetet

Visszahívást kérek

Hasonló ingatlanok