Kiadó Iroda Székesfehérvár - Déli Ipari Zóna

14 m2Alapterület 1 Szoba
4 400 Ft /Hó Ár
356907Azonosító
További adatok

Udvari Kilátás

Jó állapotú Állapot

Tégla Szerkezet

Egyéb Fűtés

Saját beálló Parkolás

Emelet 2

Nincs Lift

Tömegközlekedés

2000 Építés éve

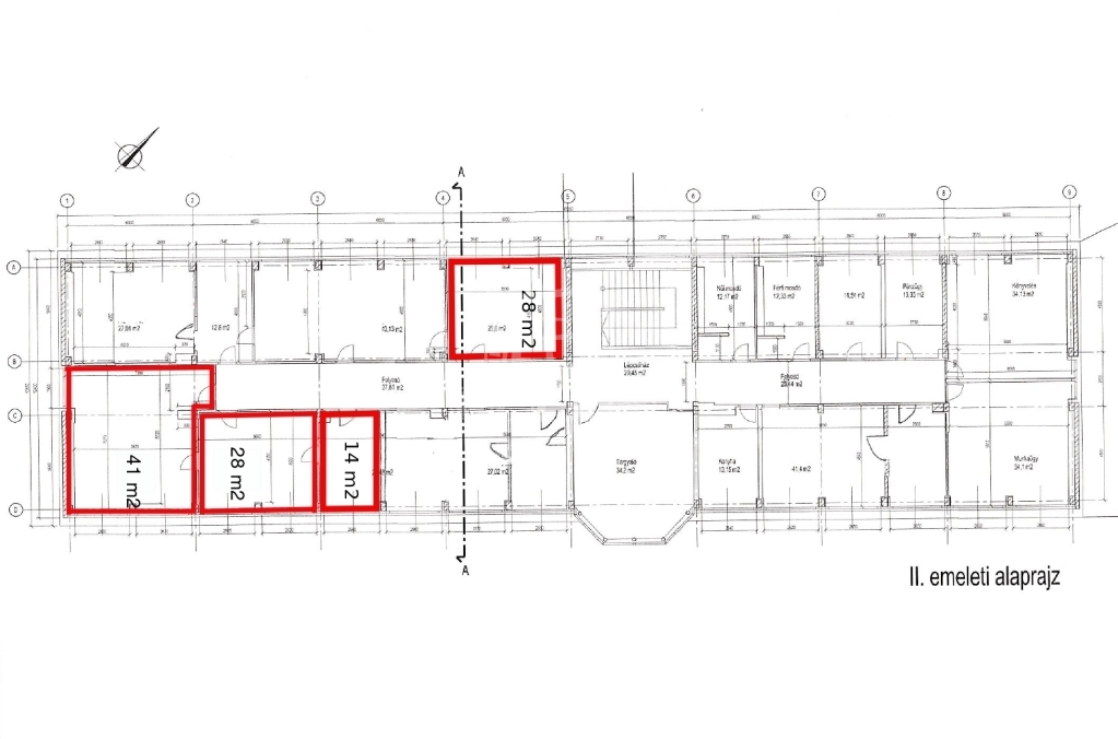
Bip-002464. Déli Ipari Parknál az M7-es autópályához közel „A” kategóriás irodaházban különböző alapterületű irodahelyiségek kiadók!

Elérhető, szabad irodák:
‣ II. emelet: 28m2
‣ II. emelet: 41m2
‣ II. emelet: 28m2
‣ II. emelet: 14m2

Jellemzők:
‣ felújított állapotú épület
‣ portaszolgálat
‣ közöshasználatú konyha, étkező
‣ zömében klimatizált irodák
‣ árnyékolás zsaluziákkal
‣ parkolás az épület környezetében ingyenes
‣ díj ellenében az udvarban saját parkolóhely biztosítható (15.000 Ft +ÁFA/hó)

Bérleti díj: 4400 Ft +ÁFA/m2/hó +rezsi +
kaució: 2 havi bruttó bérleti díjnak megfelelő összeg



Ha felkeltette érdeklődését, hívja irodánkat bizalommal, éljen ingyenes, személyre szabott hitelügyintézés szolgáltatásunkkal. Segítünk továbbá adásvételhez szükséges ügyvédi közreműködésben, energetikai tanúsítvány, valamint értékbecslés elkészítésében.

For English details please send us a message or an e-mail, thank you.
Märcz Ágnes

Märcz Ágnes

Hívjon bizalommal

+36-20-960-Mutasd!

További hirdetéseim

Ingatlaniroda
GDN Ingatlanhálózat - Märcz Kft
+36 22 503 000

Küldjön üzenetet

Visszahívást kérek

Hasonló ingatlanok