Eladó Családi ház Tiszaalpár - központ

140 m2Alapterület 5 Szoba
24 600 000 Ft Ár
388667Azonosító
További adatok

720 m2 Telek

Udvari Kilátás

Jó állapotú Állapot

Vegyes falazat Szerkezet

Gáz (cirkó) Fűtés

Összkomfort Komfort

Saját beálló Parkolás

Tömegközlekedés

Nem Amerikai konyhás

Van Kertkapcsolat

1966 Építés éve

Hitelkalkuláció – a részletekért kattintson valamelyik bank logójára!

Otthonok és megoldások!

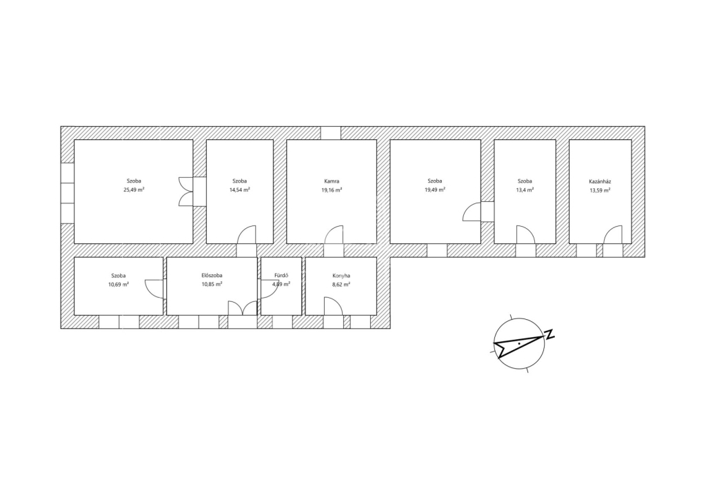
Tiszaalpár központjában két utcára nyíló, osztható családi ház eladó.

Két helyrajzi számon fekvő, két utcáról is megközelíthető, összesen 720m²-es telken eladó egy 141 m²-es vegyes falazatú családi ház.
Az ingatlan kiváló lehetőséget rejt magában: két külön bejáratú lakóegységgé alakítható, így akár két generáció együttélésére vagy befektetésre is alkalmas.
A fűtés gáz és vegyestüzelésű kazánnal, radiátoros rendszeren keresztül történik.
Az épület részben szigetelt, teljesen közművesített, és rövid időn belül birtokba vehető.

Főbb jellemzők:

- 141 m² lakótér, 5 szoba
- két helyrajzi szám, két utcafront
- leválasztható, két önálló ház is kialakítható
- gáz és vegyestüzelésű kazán, radiátoros központi fűtés
- teljesen közművesített
- részben szigetelt épület
- gyorsan birtokba vehető

Kiváló elhelyezkedése miatt minden fontos szolgáltatás néhány perces sétával elérhető.
Akár összeköltöző családtagoknak, akár befektetőknek remek választás!
Kocsis Zoltán

Kocsis Zoltán

Hívjon bizalommal

+36-30-667-Mutasd!

További hirdetéseim

Ingatlaniroda
GDN Ingatlanhálózat - STOP Ingatlan
+36 76 536 091

Küldjön üzenetet

Visszahívást kérek

Hasonló ingatlanok