Eladó Családi ház Zalaegerszeg - Zalaegerszeg, Csács

150 m2Alapterület 5 Szoba
129 000 000 Ft Ár
351201Azonosító
További adatok

520 m2 Telek

Udvari Kilátás

Új Állapot

Tégla Szerkezet

7 m2 Erkély/terasz

Hőszivattyú Fűtés

Összkomfort Komfort

Saját garázs Parkolás

Tömegközlekedés

Amerikai konyhás

Van Kertkapcsolat

2023 Építés éve

Hitelkalkuláció – a részletekért kattintson valamelyik bank logójára!

Eladó PRÉMIUM CSALÁDI HÁZ ÚJ KIVITELEZŐTŐL!

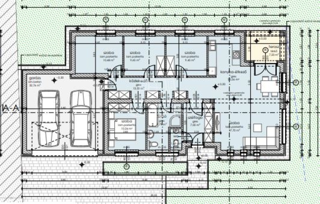
Zalaegerszeg, csácsi városrészében egy 150 m2-es, ÚJ ÉPÍTÉSŰ, korszerű kialakítású, ALACSONY REZSIVEL rendelkező családi házat kínálok eladásra!

Az ingatlan helyiségei a következőképpen kerültek kialakításra:
- amerikai konyhás nappali étkezővel
- 4 szoba
- fürdőszoba mosdóval felszerelve
- külön plusz WC
- előszoba
- közlekedő
- dupla garázs
- terasz

Műszaki információk:
- 30-as tégla falazat
- 15 cm-es szigetelés
- 3 rétegű műanyag nyílászárók redőnnyel ellátva
- hőszivattyús fűtésrendszer (padlófűtéssel kiegészítve)
- 1 db inverteres klíma
- választható hideg-meleg burkolatok

További jellemzők, extrák:
A vételár tartalmazza a tereprendezést, a kerítés kialakítását és a térkövezést egyaránt.
Délnyugati tájolásának megfelelően tágas terei napfényesek és világosak szinte egész nap.
Csendes, családi lakóövezet, jellemzi, egy szintes kialakítással rendelkezik.
CSOK és egyéb illetékkedvezmények egyaránt igénybe vehetők!

A hirdetésben szereplő belső és külső képek egy már elkészült ház képeit tartalmazzák.

Megtekintési időpontért keressen bizalommal!
Sebők Noémi

Sebők Noémi

Hívjon bizalommal

+36-30-491-Mutasd!

További hirdetéseim

Ingatlaniroda
GDN Ingatlanhálózat - Zala Ingatlaniroda
+36 70 883 0574

Küldjön üzenetet

Visszahívást kérek

Hasonló ingatlanok