Kiadó Raktár Budapest IV. kerület - Ipari parkban 152 m² raktár kiadó

152 m2Alapterület 0 Szoba
896 €(~ 326 762 Ft)
352217Azonosító
További adatok

Közepes Állapot

Beton Szerkezet

Egyéb Fűtés

Utcán, közterületen Parkolás

Tömegközlekedés

1975 Építés éve

Az M3-as autópálya és a Váci út közelében található raktárházunkban, földszintes csarnoképületben kínálunk bérelhető területeket, raktárakat, illetve irodákat. Ideális választás többek között komplex szállítmányozási megoldásokhoz.

Ipari területen, összesen 4845 m2 csarnoképületben szállítmányozási-, raktározási-, illetve irodai funkciók egyaránt megoldhatók, így azoknak is ideális, akik a vállalat főbb tevékenységi köreit egy központi helyszínre költöztetnék, vagy egy bemutatótermet is szeretnének ezeken felül kialakítani. Épületeinkben 24 órás őrzést biztosítunk.

Az ingatlanon belül parkolók, raktárak, szerelőműhelyek, üzlethelyiségek találhatók.

Megközelítés:
Újpesten, található ipartelep a Váci útról és az M3-as autópályáról egyaránt megközelíthető gépkocsival vagy nagyobb teherjárművel is. Tömegközlekedéssel az M3-as metró Újpest-központ megállójától gyalog, a 30-as buszcsaláddal, illetve vonattal a Rákospalota megállótól gyalogosan, vagy kerékpárral egyaránt megközelíthető az ipartelep.

Ár: 5,90 € /m2+ÁFA-tól
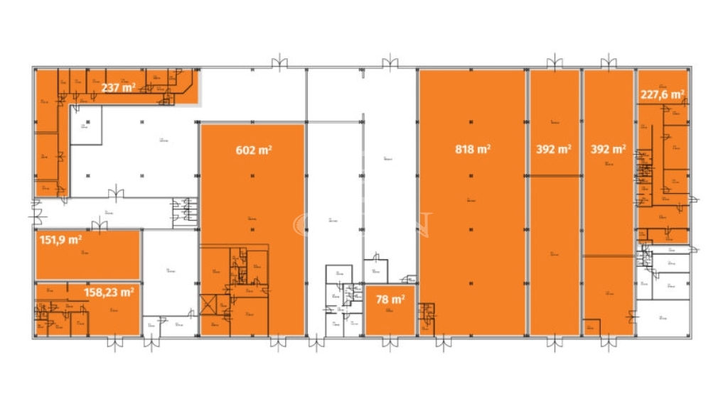
Teljes terület: 4.300 m2
Szabad Terület: 2.751 m2
Min. Bérelhető Terület: 152 m2

További lehetőségek: 602 m2; 818 m2; 392 m2.

Fenntartási és üzemeltetési díj: 1,8 EUR+Áfa / m2 + almérők

Szolgáltatások:
-24 órás telephely őrzés
-Parkolók
László István

László István

Hívjon bizalommal

+36-30-638-Mutasd!

További hirdetéseim

Ingatlaniroda
GDN Ingatlanhálózat - Ingatlan Budafok
+36 30 250 4987

Küldjön üzenetet

Visszahívást kérek

Hasonló ingatlanok